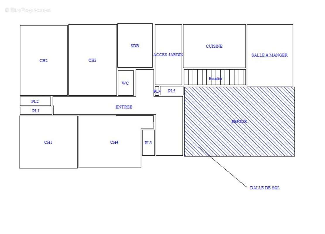
Maison 104m² à bourgueil

— Bourgueil 37140 —
130 000 €
104 m² / 1 209 m²
6 pièces
jardin



Honoraires à la charge du vendeur. Classe énergie F, Classe climat D. Logement à consommation énergétique excessive. Montant moyen estimé des dépenses annuelles d'énergie pour un usage standard, établi à partir des prix de l'énergie de l'année 2021 : 1900.00 €. Date de réalisation du DPE : 18-05-2021. Les informations sur les risques auxquels ce bien est exposé sont disponibles sur le site Géorisques : georisques.gouv.fr.

Carte pro. CPI67[Coordonnées masquées]23425
Voir plus

Référence: VM616-ANOVA
Honoraires à la charge du vendeur.
Barème des honoraires
DPE
A
B
C
D
E
F
G
GES
A
B
C
D
E
F
G

Prêt immobilier

Vous souhaitez connaître votre capacité d’emprunt et trouver le meilleur crédit immobilier ?
Réaliser une simulation gratuite

Maison à BOURGUEIL
Maison à BOURGUEIL
Maison à BOURGUEIL
Maison à BOURGUEIL
Maison à BOURGUEIL
Maison à BOURGUEIL
Maison à BOURGUEIL
Maison à BOURGUEIL
Maison à BOURGUEIL
Ce site est protégé par reCAPTCHA la Politique de confidentialité et les Conditions d’utilisation de Google s’appliquent.
Obtenir un prêt immobilier au meilleur taux ?

En poursuivant votre navigation sans modifier vos paramètres, vous acceptez l'utilisation de cookies susceptibles de réaliser des statistiques de visite. Cliquez ici pour plus d'informations