Bénéficiez des services de nos partenaires locaux soigneusement sélectionnés
pour vous accompagner dans votre parcours d'achat immobilier

Chaville velizy rer c - beau 2 pièces au calme

— Chaville 92370 —
213 200 €
37 m²
2 pièces

Nos partenaires locaux
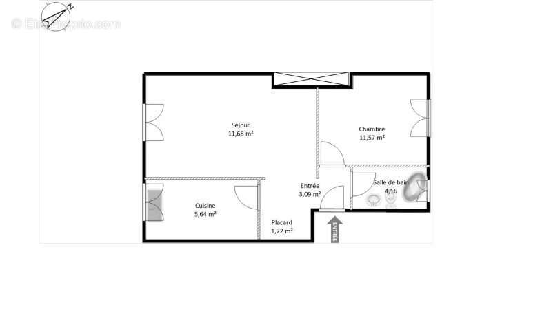
Au pied des commerces et transports (RER C, ligne N et L), dans une petite rue calme, dans un immeuble des années 1930 . Beau 2 pièces de 37 m2 au 3ème étage traversant, en très bon état général avec vue dégagée comprenant une entrée, un salon, une cuisine séparée équipée, une chambre, une salle de bain, un espace buanderie/chaufferie. Une cave complète ce bien.
Chauffage électrique individuel. Double vitrage. DPE E
Taxe foncière: 575€, Charges annuelles: 1605€

HONORAIRES D'AGENCE 4% inclus dans le prix affiché.
UNE EXCLUSIVITE APPARTEMENTS ET MAISONS CHAVILLE VIROFLAY (A.M.C.V.)
Pour tout contact: Aurore PANNETIER [Coordonnées masquées].

Les informations sur les risques auxquels ce bien est exposé sont disponibles sur le site Géorisques : www.georisques.gouv.fr
Voir plus

Référence: 7453973
Barème des honoraires
DPE
A
B
C
D
E
F
G
GES
A
B
C
D
E
F
G

Prêt immobilier

Vous souhaitez connaître votre capacité d’emprunt et trouver le meilleur crédit immobilier ?
Réaliser une simulation gratuite

Appartement à CHAVILLE
Appartement à CHAVILLE
Appartement à CHAVILLE
Appartement à CHAVILLE
Appartement à CHAVILLE
Appartement à CHAVILLE
Appartement à CHAVILLE
Appartement à CHAVILLE
Appartement à CHAVILLE
Appartement à CHAVILLE
Ce site est protégé par reCAPTCHA la Politique de confidentialité et les Conditions d’utilisation de Google s’appliquent.
Obtenir un prêt immobilier au meilleur taux ?

En poursuivant votre navigation sans modifier vos paramètres, vous acceptez l'utilisation de cookies susceptibles de réaliser des statistiques de visite. Cliquez ici pour plus d'informations