Bénéficiez des services de nos partenaires locaux soigneusement sélectionnés
pour vous accompagner dans votre parcours d'achat immobilier

Publier - villa neuve

— Publier 74500 —
725 000 €
126 m² / 681 m²
5 pièces
parkingjardin

Nos partenaires locaux
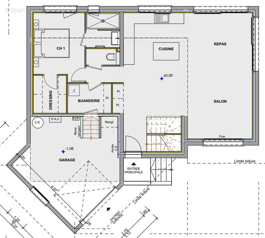
Sur la commune de PUBLIER, dans un quartier résidentiel, découvrez cette nouvelle villa à construire sur terrain de 681m² , comprenant : vaste séjour/salon/cuisine de 50m², suite parentale au rez de chaussée avec dressing et salle d'eau; A l'étage, 3 chambres dont une avec dressing et grande salle de bains/douche. Grand garage. Chauffage au sol par pompe à chaleur (construction RE2020 = très bonne isolation).

Référence: 116
Honoraires à la charge du vendeur.
Barème des honoraires

Prêt immobilier

Vous souhaitez connaître votre capacité d’emprunt et trouver le meilleur crédit immobilier ?
Réaliser une simulation gratuite

Maison à PUBLIER
Maison à PUBLIER
Maison à PUBLIER
Maison à PUBLIER
Maison à PUBLIER
Maison à PUBLIER
Maison à PUBLIER
Maison à PUBLIER
Ce site est protégé par reCAPTCHA la Politique de confidentialité et les Conditions d’utilisation de Google s’appliquent.
Obtenir un prêt immobilier au meilleur taux ?

En poursuivant votre navigation sans modifier vos paramètres, vous acceptez l'utilisation de cookies susceptibles de réaliser des statistiques de visite. Cliquez ici pour plus d'informations