Maison 135m² à morzine

— Morzine 74110 —
1 120 000 €
135 m²
6 pièces
parkingbalcon/terrasse

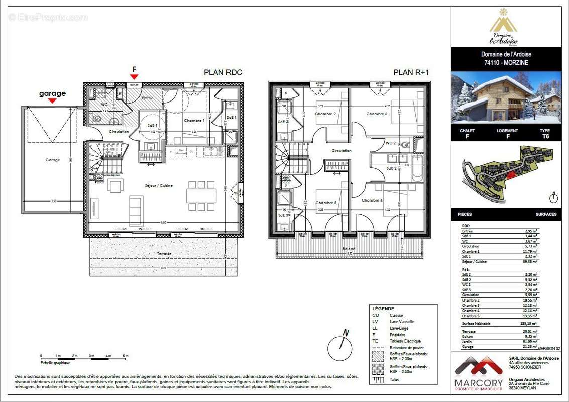
Chalet neuf proposant 5 chambres, 5 salle de bains, 2 WC, séjour, cuisine, balcon, terrasse,jardin.

Situé à 1000m d'altitude , à seulement 2km du domaine skiable de Morzine, le 'Domaine de l'Ardoise' est une résidence qui offre à ses résidents un accès rapide et simple aux sports d'hiver. Le dépaysement est total grâce aux magnifiques vues sur les montagnes environnantes. La résidence bénéficie d'un emplacement ensoleillé, au calme avec vue dégagée sur les sommets.

Le projet est composé d'appartements et de chalets, cette résidence offre une multitude de choix. Le 'Domaine de l'Ardoise' est un vrai quartier résidentiel avec de nombreux espaces verts, qui a été pensé afin de préserver l'intimité des résidents.

Le projet a été conçu afin d'immerger ses occupants dans le plus pur esprit montagnard. Il vous séduira par l'authenticité des aménagements intérieurs étudiés avec goût et finesse mais également par le choix et la diversité des matériaux proposés, alliant douceur et confort.

Chaque logement a été pensé pour apprécier l'environnement extérieur, expositions idéales, larges baies vitrées pour laisser pénétrer le maximum de lumière ainsi que de grandes terrasses pour profiter de l'été à la montagne. Par ailleurs, le côté pratique n'a pas été oublié avec de nombreux rangements.

Malgré son côté authentique, le 'Domaine de l'Ardoise' est une résidence de son temps, répondant aux meilleurs standards d'économie d'énergie et de confort, notamment avec le respect des dernières normes énergétiques ainsi que de la réglementation acoustique, le tout contrôlé avant la livraison.

Plus d'informations sur demande!



Honoraires à la charge du vendeur. DPE vierge. Les informations sur les risques auxquels ce bien est exposé sont disponibles sur le site Géorisques : georisques.gouv.fr.
Voir plus

Référence: VM302-AGENCEOLIVIER
Honoraires à la charge du vendeur.
Barème des honoraires

Prêt immobilier

Vous souhaitez connaître votre capacité d’emprunt et trouver le meilleur crédit immobilier ?
Réaliser une simulation gratuite

Maison à MORZINE
Maison à MORZINE
Maison à MORZINE
Maison à MORZINE
Maison à MORZINE
Maison à MORZINE
Ce site est protégé par reCAPTCHA la Politique de confidentialité et les Conditions d’utilisation de Google s’appliquent.
Obtenir un prêt immobilier au meilleur taux ?

En poursuivant votre navigation sans modifier vos paramètres, vous acceptez l'utilisation de cookies susceptibles de réaliser des statistiques de visite. Cliquez ici pour plus d'informations