Appartement 43m² à les gets

— Les Gets 74260 —
335 000 €
44 m²
2 pièces
balcon/terrasseascenseur





'EDENWEISS', UNE RÉSIDENCE INTIMISTE, DANS LE PLUS PUR ESPRIT HAUT-SAVOYARD

FRAIS DE NOTAIRE OFFERTS !

Situé à l'entrée du village, dans un quartier en plein essor, l'Edenweiss vous offre une proximité immédiate au télésiège des Perrières. Le quartier des Perrières connait une véritable développement au cours de ses dernières années et possède de nombreux atouts.

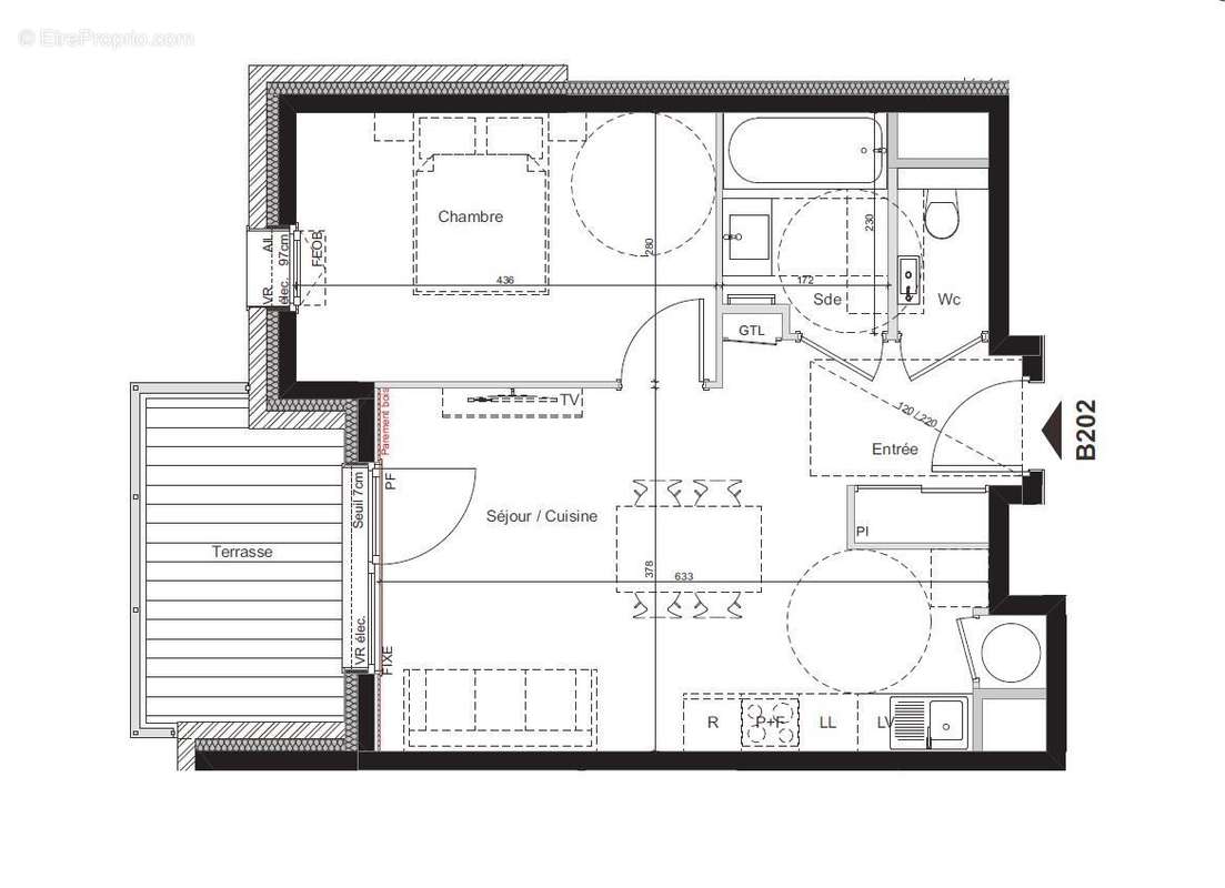
La résidence Edenweiss vous propose un appartement T2 avec une terrasse exposée sud-ouest et un cassier à ski chauffant.

LES SURFACES DETAILLÉES :

Entrée 3,27 m² - Séjour / Cuisine 23,06 m² - Chambre 12,21 m² - SDE 3,74 m² - WC 1.42 m² - Terrasse 6,56 m²

Possibilité d'acheter un parking et un cellier (prix en fonction de la taille).

Qu'il s'agisse d'un achat à usage d'habitation principale, d'une résidence secondaire ou pour un investissement locatif, la localisation du programme offre un équilibre parfait entre proximité et tranquillité à quelques minutes de toutes les commodités : Piste de ski ou de VTT, randonnée, supermarché, commerces, écoles…

Pour les investisseurs il est possible de bénéficier d'une réduction de prix de 20% par l'intermédiaire d'un système simple de récupération de TVA.

Dans une copropriété de 25 lots. Aucune procédure n'est en cours. Non soumis au DPE. Les informations sur les risques auxquels ce bien est exposé sont disponibles sur le site Géorisques : georisques.gouv.fr.
Voir plus

Référence: 3446-AGENCEOLIVIER
Bien en copropriété. Nombre de lots : 25.
Honoraires à la charge de l'acquéreur.
Barème des honoraires

Prêt immobilier

Vous souhaitez connaître votre capacité d’emprunt et trouver le meilleur crédit immobilier ?
Réaliser une simulation gratuite

Appartement à LES GETS
Appartement à LES GETS
Appartement à LES GETS
Appartement à LES GETS
Ce site est protégé par reCAPTCHA la Politique de confidentialité et les Conditions d’utilisation de Google s’appliquent.
Obtenir un prêt immobilier au meilleur taux ?

En poursuivant votre navigation sans modifier vos paramètres, vous acceptez l'utilisation de cookies susceptibles de réaliser des statistiques de visite. Cliquez ici pour plus d'informations