Diponible de suite t3 de 66,89m² avec terrasse et balcon à st herblain- quartier beauséjour.

— Saint-Herblain 44800 —
285 553 €
67 m²
3 pièces
parkingbalcon/terrasseascenseur

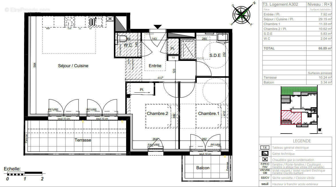
St Herblain Quartier Beauséjour . Près du parc de la Chézine , la résidence est à 10 minutes du centre-ville de Nantes. Elle bénéficie de la proximité des commerces (boulangerie, pharmacie, tabac-presse), des services et des établissements scolaires (école, collège, lycée). La ligne C20 du Chronobus permet de desservir toute l'agglomération, de même que la ligne 3 du tramway (arrêt Beauséjour) et le périphérique à 5 minutes. Dans petite copropriété de 34 logements , appartement de type 3 de 66,89m² situé au 3ème étage comprenant séjour cuisine de 29,15m² ouverte sur terrasse de 10,24m² orienté sud-est , deux belles chambres dont une donnant sur balcon . Deux parkings au sous-sol complète ce bien. Label énergie : RT 2012 Norme PMR ( personne à mobilité réduite) , éligible Pinel Références : 31327FAC-A302 Résidence Livrée - Bien disponible de suite Prix : 285 553 euros EN TVA 5,5% (*) (+ frais notaire réduits 2.5%) (*) Soumis à conditions de ressources Prix direct promoteur "Les informations sur les risques auxquels ce bien est exposé sont disponibles sur le site Géorisques : www.georisques.gouv.fr" Copropriété de 34 lots - dont 34 lots habitation.(Pas de procédure en cours).
Voir plus

Bien en copropriété. Nombre de lots : 34.
Honoraires à la charge du vendeur.
Barème des honoraires

Prêt immobilier

Vous souhaitez connaître votre capacité d’emprunt et trouver le meilleur crédit immobilier ?
Réaliser une simulation gratuite

Appartement à SAINT-HERBLAIN
Appartement à SAINT-HERBLAIN
Appartement à SAINT-HERBLAIN
Appartement à SAINT-HERBLAIN
Ce site est protégé par reCAPTCHA la Politique de confidentialité et les Conditions d’utilisation de Google s’appliquent.
Obtenir un prêt immobilier au meilleur taux ?

En poursuivant votre navigation sans modifier vos paramètres, vous acceptez l'utilisation de cookies susceptibles de réaliser des statistiques de visite. Cliquez ici pour plus d'informations