Terrain 17816m² à bressols

— Bressols 82710 —
1 870 680 €
17 816 m²

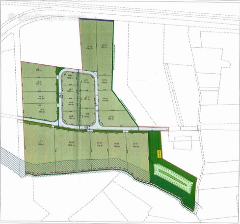
Cushman et Wakefield Toulouse vous propose un nouveau lotissement industriel en cours de réalisation à VENDRE.
Les terrains à usage d'activités sont idéalement situés au sud de Montauban sur la commune de Bressols et à proximité de la ZAC de Grand Sud LogistiqueLes terrains sont viabilisés, prêts à construire

Desserte en transports :
Accès via A 62

Référence: 82_11083
Honoraires d'agence de 7% à la charge de l'acquéreur

Prêt immobilier

Vous souhaitez connaître votre capacité d’emprunt et trouver le meilleur crédit immobilier ?
Réaliser une simulation gratuite

Terrain à BRESSOLS
Terrain à BRESSOLS
Ce site est protégé par reCAPTCHA la Politique de confidentialité et les Conditions d’utilisation de Google s’appliquent.
Obtenir un prêt immobilier au meilleur taux ?

En poursuivant votre navigation sans modifier vos paramètres, vous acceptez l'utilisation de cookies susceptibles de réaliser des statistiques de visite. Cliquez ici pour plus d'informations