Bénéficiez des services de nos partenaires locaux soigneusement sélectionnés
pour vous accompagner dans votre parcours d'achat immobilier

Appartement 78m² à kingersheim

— Kingersheim 68260 —
272 000 €
79 m²
4 pièces
parkingbalcon/terrasse

Nos partenaires locaux
ANOVA IMMOBILIER vous propose à prix promoteur
Le programme VIRTUO 
Rue d'Illzach68260 KINGERSHEIM

Date de livraison prévisionnelle : 1er trimestre 2025
Date d'actabilité : 2eme trimestre 2023
Fiscalité : Pinel /Résidence principale
Nature du programme : Collectif


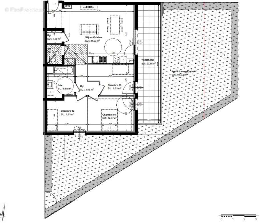
T4 en rez de jardin avec séjour / cuisine de 34,03m2, 3 chambres, une salle d'eau, une terasse de 20,68m2 et un jardin de 115,32m2.

Situation :


Programme immobilier neuf disponible pour votre résidence principale ou pour l'investissement immobilier
En périphérie de Mulhouse, dans un quartier recherché et parfaitement desservi, les appartements vont du T2 au T4 avec stationnement et espaces extérieurs (balcons, terrasse ou jardins) généreux sauront vous séduire. Vous disposerez d'un séjour avec une cuisine ouverte.
Chauffage au gaz

Proximité:
Proche de Mulhouse
Proche des transports
Parc des gravières
Ecole et collège
Commerces


Pour plus de renseignements,
Pour obtenir les plans et les lots disponibles,
Contactez nous.
ANOVA IMMOBILIER [Coordonnées masquées]

Honoraires à la charge du vendeur. Dans une copropriété de 19 lots. Aucune procédure n'est en cours. DPE vierge. Les informations sur les risques auxquels ce bien est exposé sont disponibles sur le site Géorisques : georisques.gouv.fr.

Carte pro. CPI67[Coordonnées masquées]23425
Voir plus

Référence: VA2221-ANOVA
Bien en copropriété. Nombre de lots : 19.
Honoraires à la charge du vendeur.
Barème des honoraires

Prêt immobilier

Vous souhaitez connaître votre capacité d’emprunt et trouver le meilleur crédit immobilier ?
Réaliser une simulation gratuite

Appartement à KINGERSHEIM
Appartement à KINGERSHEIM
Ce site est protégé par reCAPTCHA la Politique de confidentialité et les Conditions d’utilisation de Google s’appliquent.
Obtenir un prêt immobilier au meilleur taux ?

En poursuivant votre navigation sans modifier vos paramètres, vous acceptez l'utilisation de cookies susceptibles de réaliser des statistiques de visite. Cliquez ici pour plus d'informations