Bénéficiez des services de nos partenaires locaux soigneusement sélectionnés
pour vous accompagner dans votre parcours d'achat immobilier

Appartement 58m² à odratzheim

— Odratzheim 67520 —
247 000 €
58 m²
3 pièces
parkingbalcon/terrasse

Nos partenaires locaux
ANOVA IMMOBILIER vous propose à prix promoteur sans frais supplémentaires : Le programme LE CLOS AM'BERG 
Rue principale et rue de la chapelle 67520 ODRATZHEIM

Livraison prévue décembre 2024
Fiscalité : PTZ
Destination : Accession ou investissement
Nature du programme : petit collectif
Norme : RT 2012

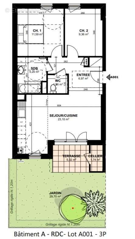
Appartement T3 RDJ avec entrée, séjour / cuisine de 23,10m2, deux chambres et une salle de bains.
Terrasse et jardin.

Situation :

Composée de 18 appartements du 2 au 4 pièces Les appartements plain pied construits dans une architecture en harmonie avec l'environnement, avec places ou box de stationnement privatifs. Les appartements à l'étage sont équipés d'un balcon. Les pièces de vie sont spacieuses avec des cuisines ouvertes. Les sols des chambres sont recouverts de parquet et les pièces de vie de carrelage. La cour intérieure est pavée.


Proximité :

Groupe scolaire
Micro crèche
Zone commerciale de Wasselonne
Zone d'activité Dorlisheim
Strasbourg à 24mn
Aéroport 25 mn
Commerces à proximité
Marlenheim

Pour plus de renseignements,
N'hésitez pas à nous appeler pour connaitre la disponibilité des autres lots
Contactez nous.
ANOVA IMMOBILIER [Coordonnées masquées]


VISUELS NON CONTRACTUELS

Honoraires à la charge du vendeur. Dans une copropriété de 21 lots. Aucune procédure n'est en cours. DPE vierge. Les informations sur les risques auxquels ce bien est exposé sont disponibles sur le site Géorisques : georisques.gouv.fr.

Carte pro. CPI67[Coordonnées masquées]23425
Voir plus

Référence: VA2224-ANOVA
Bien en copropriété. Nombre de lots : 21.
Honoraires à la charge du vendeur.
Barème des honoraires

Prêt immobilier

Vous souhaitez connaître votre capacité d’emprunt et trouver le meilleur crédit immobilier ?
Réaliser une simulation gratuite

Appartement à ODRATZHEIM
Appartement à ODRATZHEIM
Appartement à ODRATZHEIM
Appartement à ODRATZHEIM
Ce site est protégé par reCAPTCHA la Politique de confidentialité et les Conditions d’utilisation de Google s’appliquent.
Obtenir un prêt immobilier au meilleur taux ?

En poursuivant votre navigation sans modifier vos paramètres, vous acceptez l'utilisation de cookies susceptibles de réaliser des statistiques de visite. Cliquez ici pour plus d'informations