Bénéficiez des services de nos partenaires locaux soigneusement sélectionnés
pour vous accompagner dans votre parcours d'achat immobilier

Villa d'exception avec vue panoramique à mandelieu-la-napoule

— Mandelieu-La-Napoule 06210 —
995 000 €
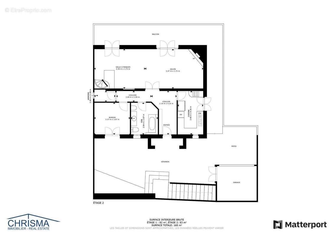
165 m² / 1 130 m²
5 pièces
jardinpiscine

Nos partenaires locaux
Situe sur les collines de Mandelieu, dans le quartier très prisé des "Les Termes", cette villa captivante offre des vues panoramiques imprenables sur le charmant village de Mandelieu-la-Napoule et la Méditerranée. S'étendant sur 160 m², cette propriété combine avec aisance le charme de la Provence et le luxe de la Côte d'Azur.
Composée de 4 chambres et 5 pièces réparties sur deux niveaux, le rez-de-chaussée vous accueille avec une entrée invitante, une chambre ou un espace bureau, une cuisine bien équipée et un salon. En descendant au niveau du jardin inférieur, vous découvrirez trois chambres supplémentaires et une buanderie pratique.
Perchée sur un terrain terrassé de 1 130 m², la propriété offre un espace extérieur généreux, avec une piscine immaculée au milieu de la sérénité des collines. Avec quatre places de parking extérieures, la commodité rencontre le confort de manière transparente.
Construite en 1975, la villa est en bon état, nécessitant des rénovations minimes pour mettre à jour certaines salles de bains aux normes contemporaines. Néanmoins, elle conserve un bon standing, souligné par des caractéristiques telles qu'une cheminée et une grande piscine privée.
Ajoutant à son attrait, sa proximité avec les commodités clés, l'aéroport n'est qu'à 20 minutes en voiture, l'autoroute accessible en 5 minutes et le centre-ville accessible en seulement 5 minutes. Les plages accueillantes ne sont qu'à 8 minutes en voiture, tandis que les supermarchés sont commodément situés à seulement 5 minutes.
Au-delà de la propriété, Mandelieu-la-Napoule offre une riche palette d'expériences, de la découverte du Château de la Napoule à la randonnée sur la pittoresque Colline de San Peyre. Profitez du soleil méditerranéen sur les plages locales, partez pour une excursion en bateau le long de la côte et savourez des promenades tranquilles le long des rives de la Siagne.
Immergez-vous dans le charme unique des quartiers commerçants de Mandelieu-la-Napoule, notamment Minelle, Les Termes et les zones commerciales comme Les Tourrades. Explorez les achats au centre commercial 601 et à Géant Casino La Galerie, ou parcourez les boutiques à Cannes Marina.
Découvrez le mélange parfait de détente, d'histoire, de nature et de shopping à Mandelieu-la-Napoule. Votre villa de rêve vous attend au cœur de la splendeur de la Côte d'Azur. Bonne visite !
Voir plus

Référence: 5765079
Barème des honoraires
DPE
A
B
C
D
E
F
G
GES
A
B
C
D
E
F
G

Prêt immobilier

Vous souhaitez connaître votre capacité d’emprunt et trouver le meilleur crédit immobilier ?
Réaliser une simulation gratuite

Maison à MANDELIEU-LA-NAPOULE
Maison à MANDELIEU-LA-NAPOULE
Maison à MANDELIEU-LA-NAPOULE
Maison à MANDELIEU-LA-NAPOULE
Maison à MANDELIEU-LA-NAPOULE
Maison à MANDELIEU-LA-NAPOULE
Maison à MANDELIEU-LA-NAPOULE
Maison à MANDELIEU-LA-NAPOULE
Maison à MANDELIEU-LA-NAPOULE
Maison à MANDELIEU-LA-NAPOULE
Maison à MANDELIEU-LA-NAPOULE
Maison à MANDELIEU-LA-NAPOULE
Maison à MANDELIEU-LA-NAPOULE
Maison à MANDELIEU-LA-NAPOULE
Maison à MANDELIEU-LA-NAPOULE
Maison à MANDELIEU-LA-NAPOULE
Maison à MANDELIEU-LA-NAPOULE
Maison à MANDELIEU-LA-NAPOULE
Maison à MANDELIEU-LA-NAPOULE
Maison à MANDELIEU-LA-NAPOULE
Maison à MANDELIEU-LA-NAPOULE
Maison à MANDELIEU-LA-NAPOULE
Maison à MANDELIEU-LA-NAPOULE
Maison à MANDELIEU-LA-NAPOULE
Maison à MANDELIEU-LA-NAPOULE
Maison à MANDELIEU-LA-NAPOULE
Maison à MANDELIEU-LA-NAPOULE
Ce site est protégé par reCAPTCHA la Politique de confidentialité et les Conditions d’utilisation de Google s’appliquent.
Obtenir un prêt immobilier au meilleur taux ?

En poursuivant votre navigation sans modifier vos paramètres, vous acceptez l'utilisation de cookies susceptibles de réaliser des statistiques de visite. Cliquez ici pour plus d'informations