Bénéficiez des services de nos partenaires locaux soigneusement sélectionnés
pour vous accompagner dans votre parcours d'achat immobilier

Maison de type 4 de 81,31m² avec garage et jardin quartier du landreau à nantes

— Nantes 44000 —
395 000 €
81 m²
4 pièces
parkingascenseur

Nos partenaires locaux
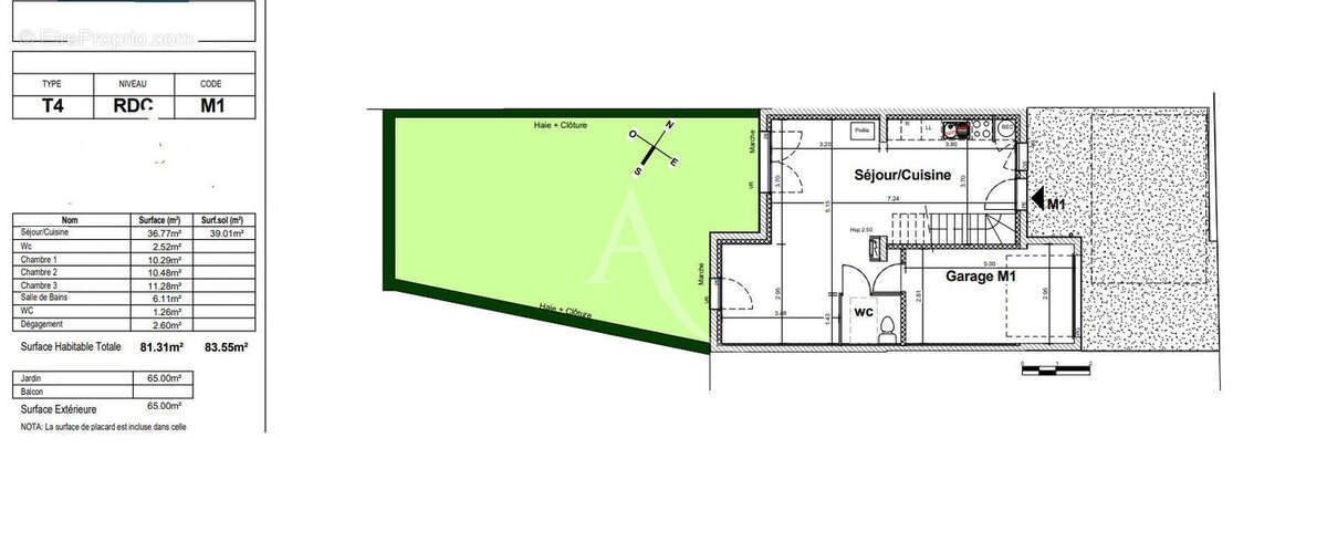
Située idéalement au coeur du quartier prisé du Landreau à Nantes, cette toute nouvelle résidence se compose de 42 appartements et 5 maisons qui séduiront par leur architecture sobre et élégante, s'intégrant harmonieusement dans un environnement principalement pavillonnaire. Une place prépondérante est accordée aux espaces verts, créant une atmosphère de jardin en plein coeur de la ville au sein de la résidence. De nombreux arbres seront plantés, rappelant le caractère arboré distinctif du quartier. L'arrêt de tramway du Landreau est accessible en seulement 5 minutes à pied, vous permettant de rejoindre le centre-ville de Nantes en 20 minutes ou les commerces du quartier en moins de 10 minutes. A moins que vous ne préfériez vous promener au sein du Parc du Grand Blotereau, situé à 5 minutes à pied... A VENDRE : Maison de type T4 de 81,31 m² avec garage. Elle se compose d'un séjour- cuisine spacieux de 36,77 m² donnant sur un jardin privatif de 65 m², trois chambres à l'étage, d'une superficie allant de 10,29 m² à 11,28 m² (possibilité d'une chambre au rez-de-chaussée), une salle de bains, une salle d'eau et deux WC séparés. Un garage attenant à la maison complète cet ensemble. Label Energie RT2012 Prix: 395 000 euros TTC (+ frais notaire réduits 2.5%) Prix direct promoteur REF: 31631-ClosM1 "Les informations sur les risques auxquels ce bien est exposé sont disponibles sur le site Géorisques : www.georisques.gouv.fr" Copropriété de 47 lots - dont 47 lots habitation.(Pas de procédure en cours).
Voir plus

Référence: 31631
Bien en copropriété. Nombre de lots : 47.
Honoraires à la charge du vendeur.
Barème des honoraires

Prêt immobilier

Vous souhaitez connaître votre capacité d’emprunt et trouver le meilleur crédit immobilier ?
Réaliser une simulation gratuite

Maison à NANTES
Maison à NANTES
Maison à NANTES
Maison à NANTES
Ce site est protégé par reCAPTCHA la Politique de confidentialité et les Conditions d’utilisation de Google s’appliquent.
Obtenir un prêt immobilier au meilleur taux ?

En poursuivant votre navigation sans modifier vos paramètres, vous acceptez l'utilisation de cookies susceptibles de réaliser des statistiques de visite. Cliquez ici pour plus d'informations