Local commercial

— Le Plessis-Bouchard 95130 —
365 000 €
93 m²

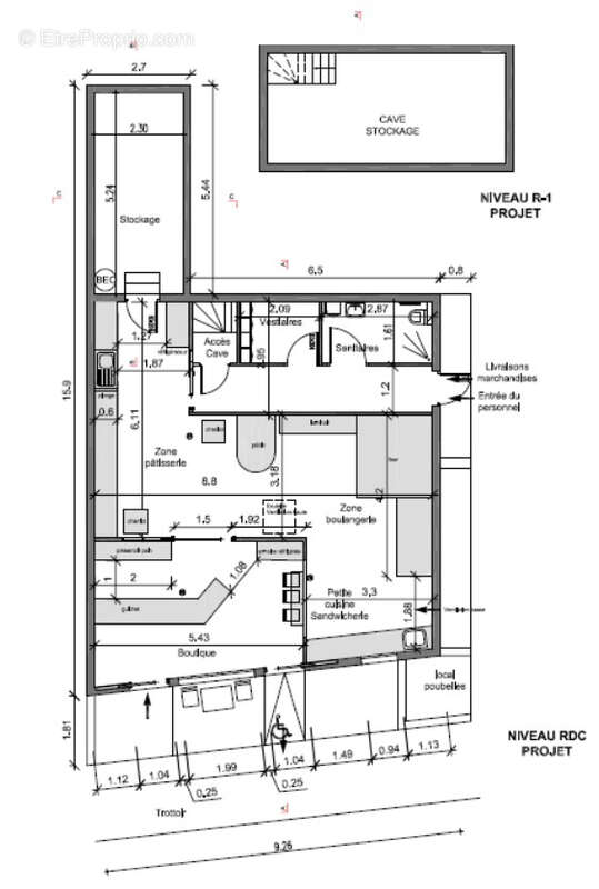
FONCINORD vous propose un local commercial occupé par une Boulangerie - Pâtisserie - Traiteur. Situé au Plessis-Bouchard (95), en parfait état : rénovation totale en 2021. Vitrine et toiture neuves, aménagement intérieur totalement neuf. Emplacement passant, proche gare et autres commerces. Climatisation. Surface du local : 93,26 m² - cave partielle 22,60 m² Bail en cours, loyer annuel 24 000 eurosHT (2.82 % honoraires TTC à la charge de l'acquéreur.)

Référence: 3230
Honoraires d'agence de 2.82% à la charge de l'acquéreur
Barème des honoraires

Prêt immobilier

Vous souhaitez connaître votre capacité d’emprunt et trouver le meilleur crédit immobilier ?
Réaliser une simulation gratuite

Commerce à LE PLESSIS-BOUCHARD
Commerce à LE PLESSIS-BOUCHARD
Ce site est protégé par reCAPTCHA la Politique de confidentialité et les Conditions d’utilisation de Google s’appliquent.
Obtenir un prêt immobilier au meilleur taux ?

En poursuivant votre navigation sans modifier vos paramètres, vous acceptez l'utilisation de cookies susceptibles de réaliser des statistiques de visite. Cliquez ici pour plus d'informations