Bénéficiez des services de nos partenaires locaux soigneusement sélectionnés
pour vous accompagner dans votre parcours d'achat immobilier

Maison 220m² à le bouscat

— Le Bouscat 33110 —
1 095 000 €
220 m²
7 pièces
parkingbalcon/terrassepiscine

Nos partenaires locaux
Sous compromis : VIVRE UNE ADRESSE QUI COMBLE TOUTES LES ATTENTES

Grâce à son patrimoine architectural préservé et authentique, la qualité de ses commerces et de ses équipements, Le Bouscat figure parmi les villes urbaines les plus prisées de la métropole bordelaise. Voisine de Bordeaux, elle en détient l'élégance, l'esprit village en plus. Son caractère authentique soigneusement préservé s'accompagne avec bonheur d'un dynamisme citadin propice au bien-être de tous ses habitants, qui offre à la fois les atouts d'une ville urbaine et d'une nature préservée.

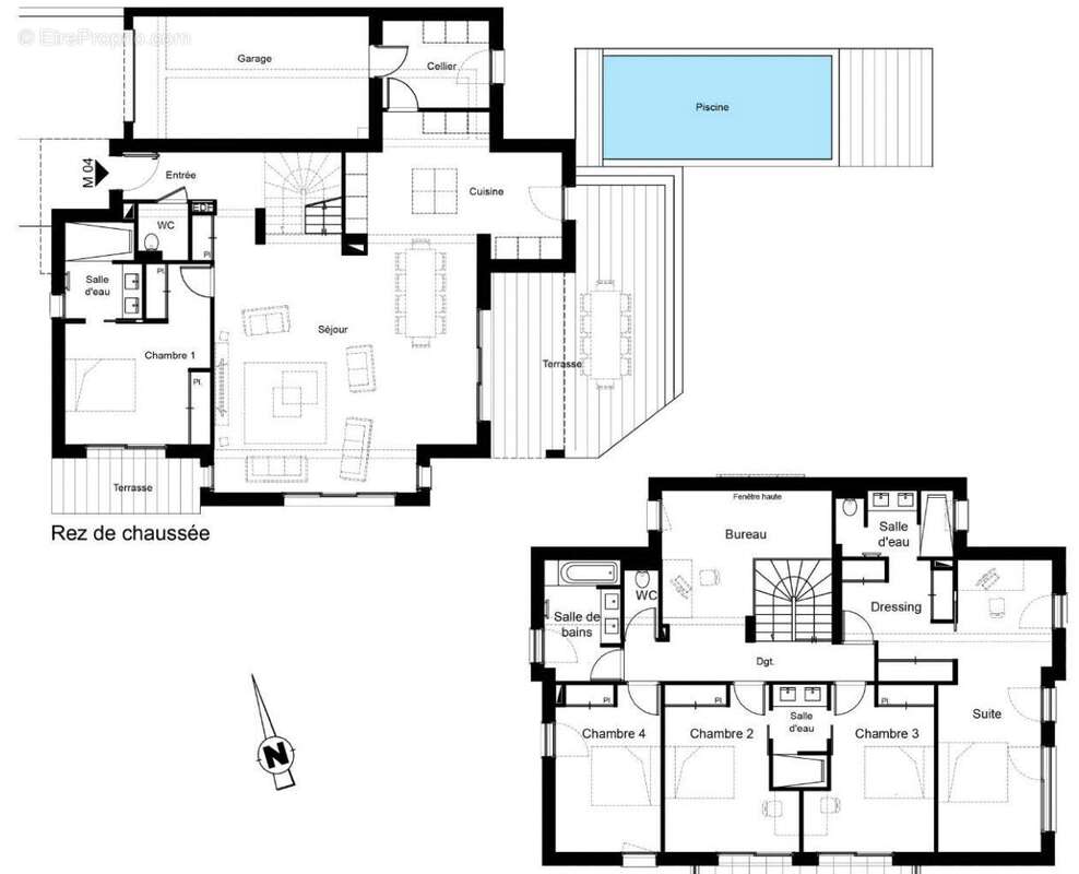
Venez découvrir cette magnifique Villa au coeur du centre ville du Bouscat avec son garage, son jardin et sa piscine. Une entrée vous avec wc indépendant et placard vous conduira à un magnifique séjour/cuisine de plus de 75m2 orienté sud/ouest et largement ouvert sur la terrasse et le jardin par de grandes et nombreuses ouvertures. De plus, vous trouverez au rez-de-chaussée, une suite avec placard et salle d'eau. Un cellier volumineux servira de rangement et de passage entre le jardin, le garage et la maison.
À l'étage, le coté nuit desservira trois belles chambres avec placard, un bureau volumineux et une magnifique suite parentale avec dressing, salle d'eau et wc de plus de 36m2. Une salle de bain, une salle d'eau et un troisième wc complètent l'espace nuit.

Un garage de plus de 21m2 ainsi qu'un parking extérieur sécurisé vous permettra de stationner vos véhicules, le tout sur une parcelle de près de 400m2.

Aucun détail n'est laissé au hasard. La disposition des pièces, les volumes généreux et les prestations haut de gamme ont étés pensé pour profiter au maximum de ce lieu de vie magique.

- Frais de Notaire Réduits
- Disponible Immédiatement
- RT 2012
- Garanties
-...

Visuel non contractuel - suggestions d'aménagement

VIVRE UNE ADRESSE QUI COMBLE TOUTES LES ATTENTES

Honoraires à la charge du vendeur. Classe énergie A, Classe climat A Montant moyen estimé des dépenses annuelles d'énergie pour un usage standard, établi à partir des prix de l'énergie de l'année 2024 : entre 510.00 et 980.00 €. Les informations sur les risques auxquels ce bien est exposé sont disponibles sur le site Géorisques : georisques.gouv.fr.

Votre conseiller RH Patrimoine : Maxime HERVE
Agent commercial (Entreprise individuelle)
RSAC 133095555 J
RCP 13309666 J
Voir plus

Référence: VM461-RHPATRI
Honoraires à la charge du vendeur.
Barème des honoraires
DPE
A
B
C
D
E
F
G
GES
A
B
C
D
E
F
G

Prêt immobilier

Vous souhaitez connaître votre capacité d’emprunt et trouver le meilleur crédit immobilier ?
Réaliser une simulation gratuite

Maison à LE BOUSCAT
Maison à LE BOUSCAT
Maison à LE BOUSCAT
Maison à LE BOUSCAT
Maison à LE BOUSCAT
Maison à LE BOUSCAT
Ce site est protégé par reCAPTCHA la Politique de confidentialité et les Conditions d’utilisation de Google s’appliquent.
Obtenir un prêt immobilier au meilleur taux ?

En poursuivant votre navigation sans modifier vos paramètres, vous acceptez l'utilisation de cookies susceptibles de réaliser des statistiques de visite. Cliquez ici pour plus d'informations