Bénéficiez des services de nos partenaires locaux soigneusement sélectionnés
pour vous accompagner dans votre parcours d'achat immobilier

Maison de village avec gros potentiel de rénovation

— Uzes 30700 —
237 000 €
12 pièces
parking

Nos partenaires locaux
Venez découvrir cette belle maison de village de 408 m² sur une parcelle de 411m² piscinable au potentiel de rénovation énorme !

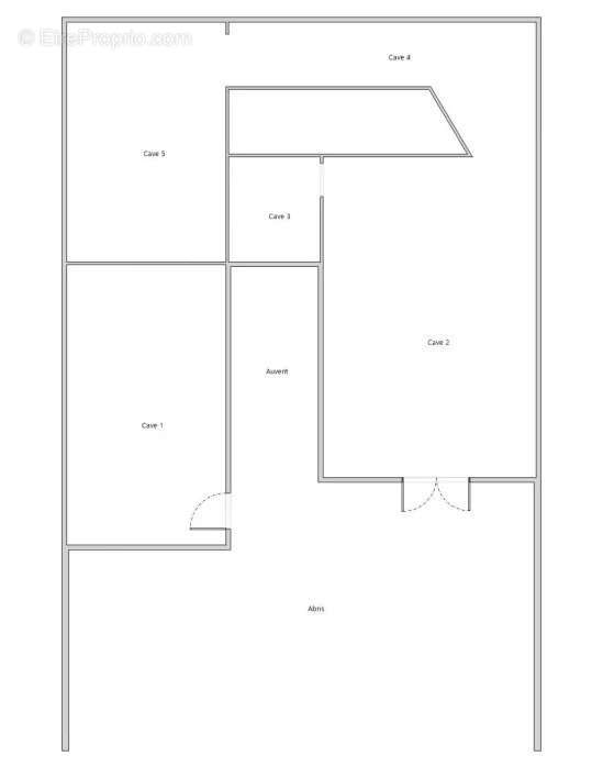
La maison est composée de 4 caves aménageables en rez-de-chaussée d'une surface totale de 98m² vous permettant de créer deux logements.
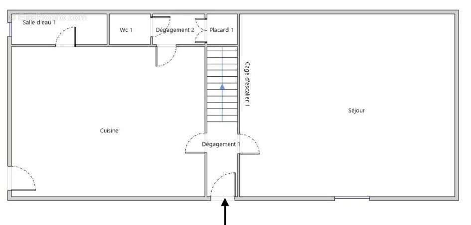
Toujours au rez-de-chaussée, vous attendent une cuisine et un salon vous donnant accès à l'escalier menant à l'étage.

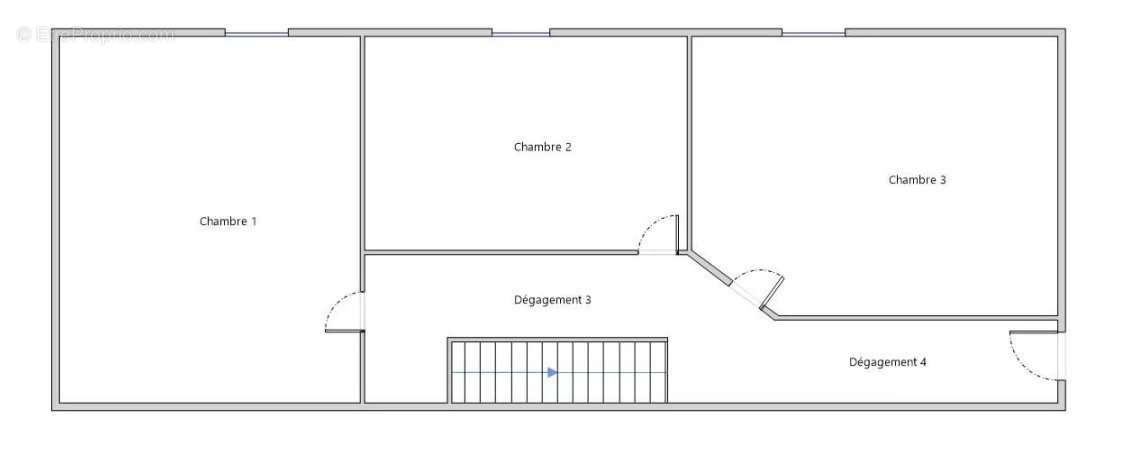
A l'étage, vous retrouverez 3 grandes chambres de 10, 14 et 17 m² ! Un accès vers l'extérieur via un long balcon vous amène sur une double pièce à vivre de 33 et 32 m² avec WC et accès à l'eau, pouvant facilement devenir un logement ou une dépendance. Au bout du balcon, une grande salle semi ouverte de 30 m² donnant accès à une pièce de vie de 31 m² et leurs superbe hauteur sous plafond de 5,88 m au faitage !

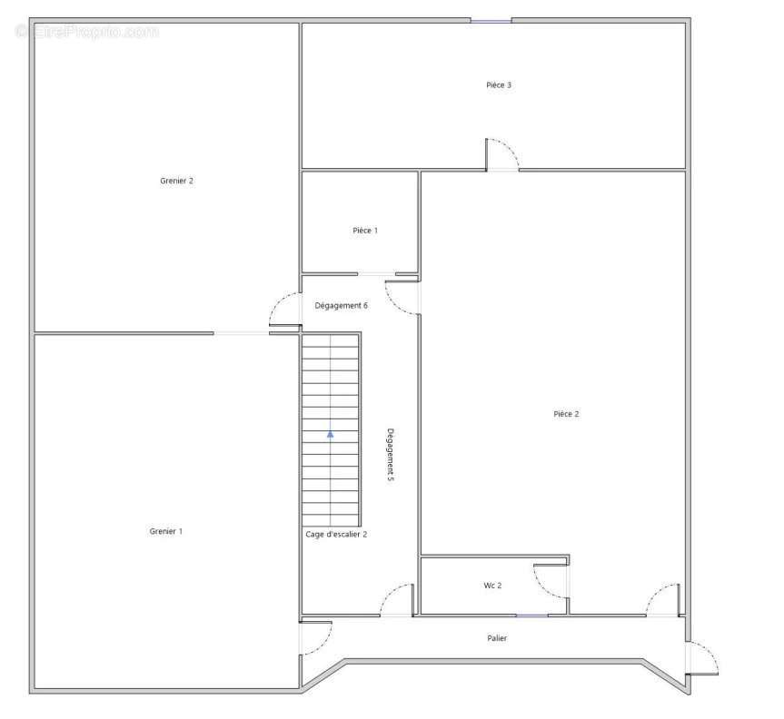
Au deuxième et dernier étage se trouve les greniers pouvant être aménagées. Il se compose de deux grandes pièces de 38 et 33 m².

Les plus : Gros potentiel de rénovation, gros potentiel d'activité d'accueil avec la possibilité de créer 5 logements en plus de la partie principale, à 10 minutes d'Uzès, piscinable, charme de l'ancien
Voir plus

Référence: 82471712
Barème des honoraires
DPE
A
B
C
D
E
F
G
GES
A
B
C
D
E
F
G

Prêt immobilier

Vous souhaitez connaître votre capacité d’emprunt et trouver le meilleur crédit immobilier ?
Réaliser une simulation gratuite

Maison à UZES
Maison à UZES
Maison à UZES
Maison à UZES
Maison à UZES
Maison à UZES
Maison à UZES
Maison à UZES
Maison à UZES
Maison à UZES
Maison à UZES
Maison à UZES
Maison à UZES
Maison à UZES
Maison à UZES
Maison à UZES
Maison à UZES
Maison à UZES
Maison à UZES
Maison à UZES
Maison à UZES
Ce site est protégé par reCAPTCHA la Politique de confidentialité et les Conditions d’utilisation de Google s’appliquent.
Obtenir un prêt immobilier au meilleur taux ?

En poursuivant votre navigation sans modifier vos paramètres, vous acceptez l'utilisation de cookies susceptibles de réaliser des statistiques de visite. Cliquez ici pour plus d'informations