Bénéficiez des services de nos partenaires locaux soigneusement sélectionnés
pour vous accompagner dans votre parcours d'achat immobilier

Montpellier proche centre et gare saint roch

— Montpellier 34000 —
277 000 €
43 m²
2 pièces
parkingbalcon/terrasseascenseur

Nos partenaires locaux
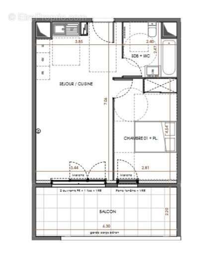
Appartement T2 situé dans une ésidence de standing avec parc. l'appartement est au 4ème étage exposé Sud avec une terrasse couverte de 14 m². L'agencement est idéal permettant de bénéficier d'un maximum d'espace utile. Le séjour et la chambre ouvrent sur la confortable terrasse. Volets roulants électriques, 1 stationnement en sous sol.

Référence: 3886
Honoraires à la charge du vendeur.
Barème des honoraires

Prêt immobilier

Vous souhaitez connaître votre capacité d’emprunt et trouver le meilleur crédit immobilier ?
Réaliser une simulation gratuite

Appartement à MONTPELLIER
Appartement à MONTPELLIER
Appartement à MONTPELLIER
Appartement à MONTPELLIER
Ce site est protégé par reCAPTCHA la Politique de confidentialité et les Conditions d’utilisation de Google s’appliquent.
Obtenir un prêt immobilier au meilleur taux ?

En poursuivant votre navigation sans modifier vos paramètres, vous acceptez l'utilisation de cookies susceptibles de réaliser des statistiques de visite. Cliquez ici pour plus d'informations