Bénéficiez des services de nos partenaires locaux soigneusement sélectionnés
pour vous accompagner dans votre parcours d'achat immobilier

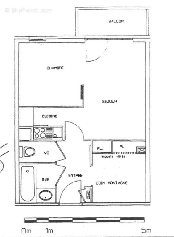
Actif immobilier investissement t2 coin montagne résidence tourisme

— Saint-Francois-Longchamp 73130 —
63 531 €
35 m²
2 pièces

Nos partenaires locaux
Investissement locatif sous bail commercial résidence tourisme gérée. loueur meublé Loyer perçu annuel HT : 3443 euros Charges générales : 195 euros annuel Taxe fonciere : 509 euros Bail renouvelé à compter du 1er mai 2022, pour une durée ferme de 9 ans, soit jusqu'au 30 avril 2031. Loyer payé trimestriellement par l'exploitant Indexation annuelle Entretien (article 605) à la charge de l'exploitant Vétusté, art 606 et normes à la charge du bailleur La résidence 3* fut construite en 2002. Appartement de type 2 pièces cabine comprenant : un séjour avec une kitchenette et coin repos, un chambre, un balcon et un casier à ski. Un balcon de 3,17 m2 complète ce bien.Proximité des commerces. Pour plus d'informations contactez Efficience Groupe tel [Coordonnées masquées] Bénéficiez de notre pôle dédié à l'achat en neuf : service courtage en financement , gestion locative, accompagnement juridique et fiscal. (2.40 % honoraires TTC à la charge de l'acquéreur.)
Voir plus

Honoraires d'agence de 2.4% à la charge de l'acquéreur
Barème des honoraires
DPE
A
B
C
D
E
F
G
GES
A
B
C
D
E
F
G

Prêt immobilier

Vous souhaitez connaître votre capacité d’emprunt et trouver le meilleur crédit immobilier ?
Réaliser une simulation gratuite

Appartement à SAINT-FRANCOIS-LONGCHAMP
Appartement à SAINT-FRANCOIS-LONGCHAMP
Appartement à SAINT-FRANCOIS-LONGCHAMP
Appartement à SAINT-FRANCOIS-LONGCHAMP
Appartement à SAINT-FRANCOIS-LONGCHAMP
Appartement à SAINT-FRANCOIS-LONGCHAMP
Appartement à SAINT-FRANCOIS-LONGCHAMP
Appartement à SAINT-FRANCOIS-LONGCHAMP
Appartement à SAINT-FRANCOIS-LONGCHAMP
Ce site est protégé par reCAPTCHA la Politique de confidentialité et les Conditions d’utilisation de Google s’appliquent.
Obtenir un prêt immobilier au meilleur taux ?

En poursuivant votre navigation sans modifier vos paramètres, vous acceptez l'utilisation de cookies susceptibles de réaliser des statistiques de visite. Cliquez ici pour plus d'informations