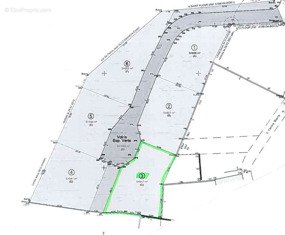
Terrain lieutades 917 m2

— Lieutades 15110 —
15 105 €
917 m²
jardin

Dans le village de LIEUTADES (Cantal), belle parcelle de terrain constructible d'une superficie totale de 917 m2, dans un petit lotissement offrant une belle vue sur un joli paysage de moyenne montagne. Vous apprécierez le calme et le charme des lieux, entre plateaux de l'Aubrac et vallée de la Truyère. A noter également le village de CHAUDES-AIGUES, à 15 mn et celui de LAGUIOLE, à 20 mn, où vous trouverez tous les services, écoles et commerces nécessaires. Ce terrain est exclusivement à vendre par Laforêt en mandat Favoriz*. Envie d'en savoir plus sur ce bien? Prenez contact avec votre agence Laforêt.
Voir plus

Référence: 1423
Honoraires à la charge du vendeur.
Barème des honoraires

Prêt immobilier

Vous souhaitez connaître votre capacité d’emprunt et trouver le meilleur crédit immobilier ?
Réaliser une simulation gratuite

Terrain à LIEUTADES
Terrain à LIEUTADES
Terrain à LIEUTADES
Ce site est protégé par reCAPTCHA la Politique de confidentialité et les Conditions d’utilisation de Google s’appliquent.
Obtenir un prêt immobilier au meilleur taux ?

En poursuivant votre navigation sans modifier vos paramètres, vous acceptez l'utilisation de cookies susceptibles de réaliser des statistiques de visite. Cliquez ici pour plus d'informations