Bénéficiez des services de nos partenaires locaux soigneusement sélectionnés
pour vous accompagner dans votre parcours d'achat immobilier

Appartement 147m² à ajaccio

— Ajaccio 20000 —
618 000 €
147 m²
4 pièces
ascenseur

Nos partenaires locaux
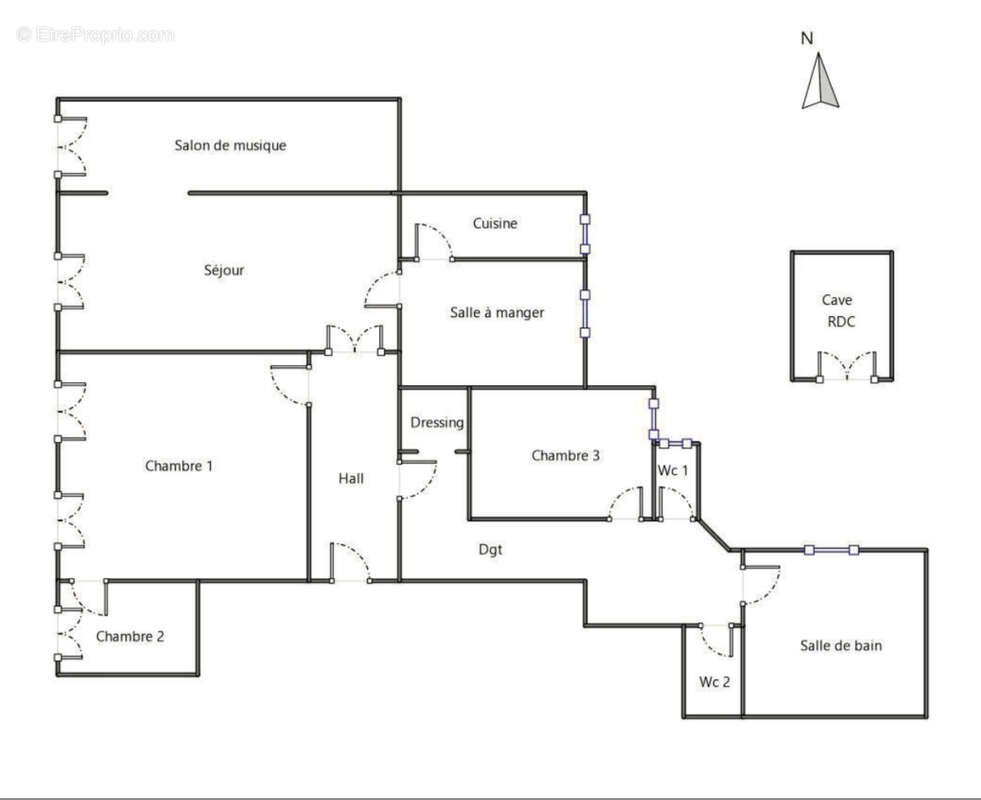
Sous Compromis Aux amoureux de l'élégance et du charme d'antan, L'agence Lods Transaction à le plaisir de vous présenter à la vente un magnifique appartement bourgeois, niché au sein d'une maison patricienne, idéalement située dans le centre historique d'Ajaccio. Dès votre arrivée, vous serez immédiatement séduit par son cachet exceptionnel et son architecture raffinée. L'appartement, situé au troisième étage, offre une surface généreuse de 147m2 carrez distribué sur cinq pièces. Le principe de l"ascenseur est voté. L'ambiance y est chaleureuse et feutrée. Les pièces spacieuses bénéficient d'une double exposition, offrant ainsi une luminosité naturelle tout au long de la journée. Les plafonds décorés à la main et les cheminées confèrent une véritable noblesse au bien et rappellent les époques révolues. Chaque espace est empreint de cette atmosphère unique, rappelant la période Napoléonienne. La disposition à l'italienne de l'appartement permet de profiter pleinement de chaque pièce et de redistribuer à sa guise son futur appartement qui mérite quelques travaux de modernisation. En plus de son charme, cet appartement bénéficie d'un emplacement privilégié. Au coeur du centre historique d'Ajaccio, vous serez à proximité immédiate des commerces, des restaurants et de la citadelle. Vous pourrez flâner dans les ruelles pavées, découvrir l'histoire de la ville impériale et profiter de l'effervescence culturelle qui l'anime. Une cave de 9m2 complète ce lot. Ne manquez pas cette occasion unique de devenir propriétaire d'un appartement bourgeois au sein d'une maison patricienne, témoignant de l'histoire et de l'élégance intemporelle d'Ajaccio. Contactez-nous dès aujourd'hui pour organiser une visite et laissez-vous séduire par ce joyau architectural.
Voir plus

Référence: 502
DPE
A
B
C
D
E
F
G
GES
A
B
C
D
E
F
G

Prêt immobilier

Vous souhaitez connaître votre capacité d’emprunt et trouver le meilleur crédit immobilier ?
Réaliser une simulation gratuite

Appartement à AJACCIO
Appartement à AJACCIO
Appartement à AJACCIO
Appartement à AJACCIO
Appartement à AJACCIO
Appartement à AJACCIO
Appartement à AJACCIO
Ce site est protégé par reCAPTCHA la Politique de confidentialité et les Conditions d’utilisation de Google s’appliquent.
Obtenir un prêt immobilier au meilleur taux ?

En poursuivant votre navigation sans modifier vos paramètres, vous acceptez l'utilisation de cookies susceptibles de réaliser des statistiques de visite. Cliquez ici pour plus d'informations