Bénéficiez des services de nos partenaires locaux soigneusement sélectionnés
pour vous accompagner dans votre parcours d'achat immobilier

Terrain a vendre a canapville !

— Canapville 14800 —
168 000 €
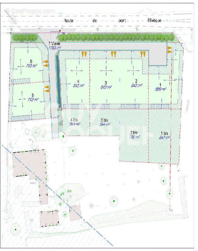
753 m²
jardin

Nos partenaires locaux
Vous rêvez de vous installer dans un lotissement Haut de Gamme à Canapville, entre Deauville et Pont l'Évêque .Seulement 6 parcelles de grande surface composent Le Domaine du Douet. Rare à la vente ! Le terrain constitue le lot N°5 du plan de masse. Pour plus de renseignements, contactez Peggy POULAIN au [Coordonnées masquées] Agent commercial Guy Hoquet (RSAC N°832926109 Greffe de LISIEUX). Peggy POULAIN (EI) Agent Commercial - Numéro RSAC : - .

Référence: 2228
Honoraires à la charge du vendeur.
Barème des honoraires

Prêt immobilier

Vous souhaitez connaître votre capacité d’emprunt et trouver le meilleur crédit immobilier ?
Réaliser une simulation gratuite

Terrain à CANAPVILLE
Terrain à CANAPVILLE
Terrain à CANAPVILLE
Ce site est protégé par reCAPTCHA la Politique de confidentialité et les Conditions d’utilisation de Google s’appliquent.
Obtenir un prêt immobilier au meilleur taux ?

En poursuivant votre navigation sans modifier vos paramètres, vous acceptez l'utilisation de cookies susceptibles de réaliser des statistiques de visite. Cliquez ici pour plus d'informations