Le cannet à vendre maison de 5 pièces de 116 m2 avec jardin et terrasses au calme absolu

— Le Cannet 06110 —
960 000 €
116 m²
5 pièces
balcon/terrasse

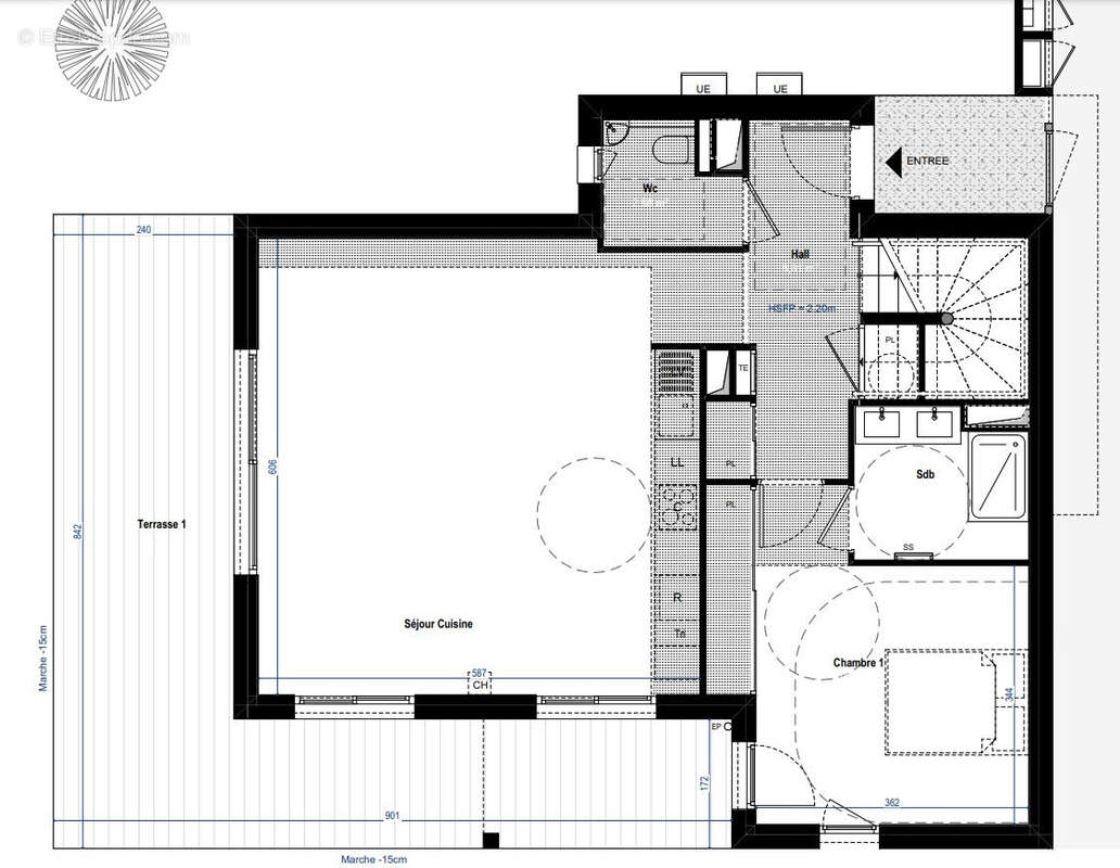
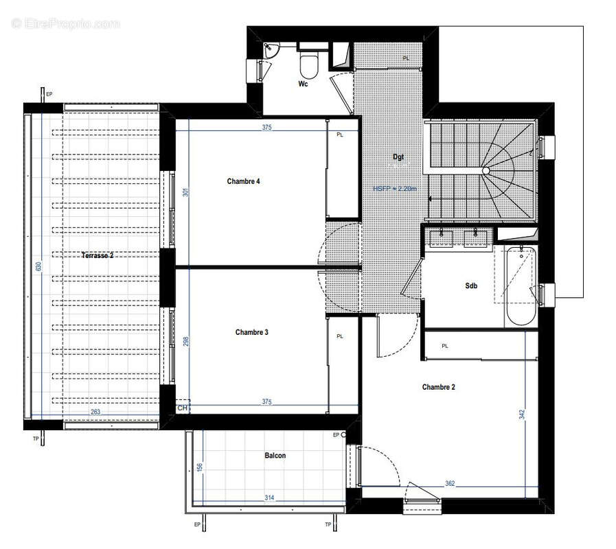
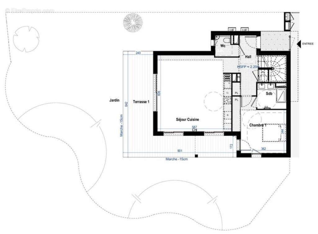
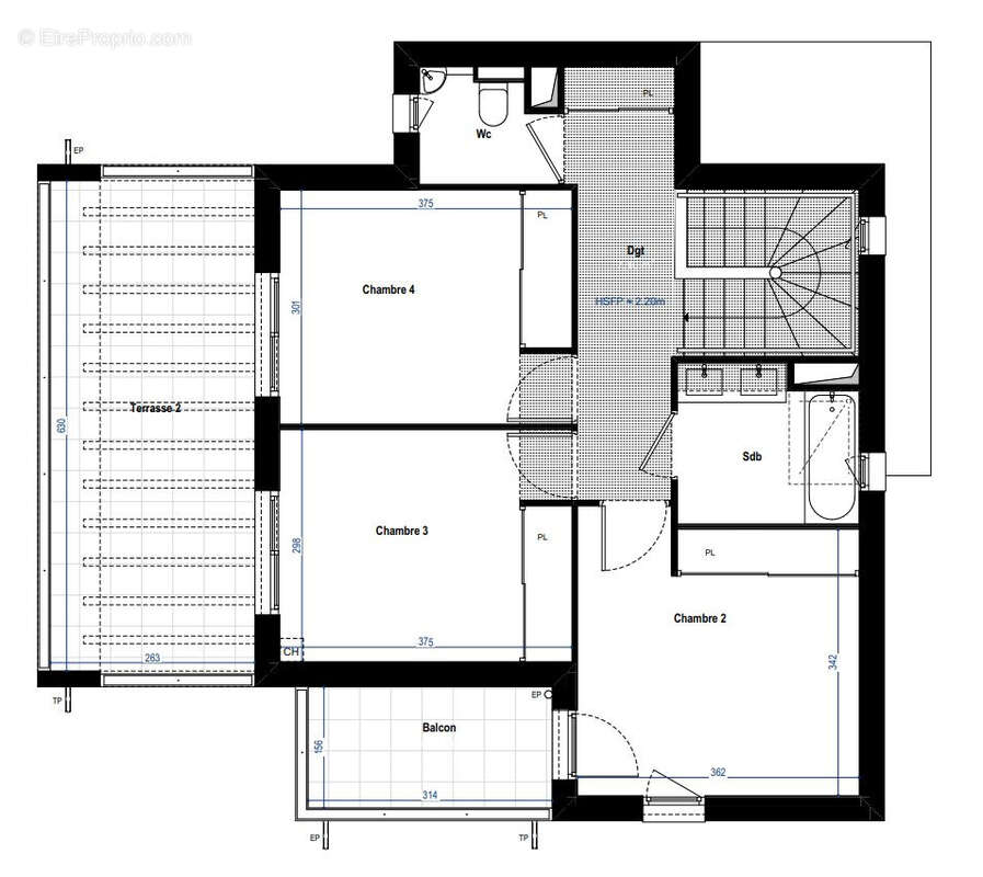
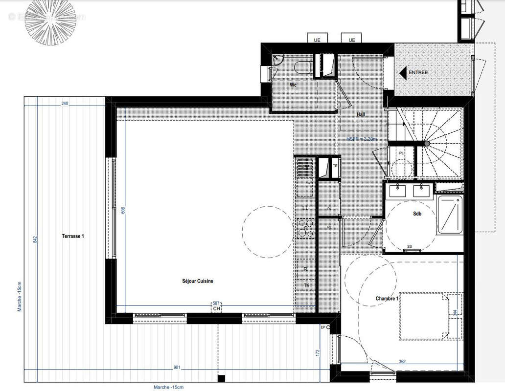
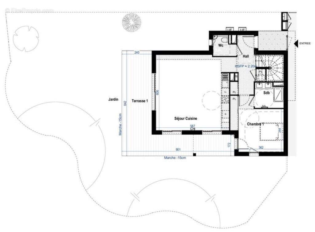
Maison à vendre LE CANNET, dans un véritable îlot de fraicheur à 10 min de la Croisette, dans un parc luxuriant au calme absolu, vous serez charmé par cette maison individuelle contemporaine de 5 pièces de 116 m2 bénéficiant d'un jardin aménagé de 192,50 m2, de 2 terrasses de 48,50 m2 et d'un balcon de 5 m2. Ce programme sera livré le 2ème trimestre 2025. Le bien sera composé d'un hall d'entrée avec placard, un wc séparés avec lave-mains, un séjour avec une cuisine américaine équipée donnant sur une terrasse de 17 m2 et le jardin, une chambre avec placard et une salle de bains. A l'étage vous trouverez un dégagement avec placard, wc lave-mains, 2 chambres avec placard donnant sur une terrasse de 31,50 m2, une chambre avec placard et un balcon de 5 m2, une salle de bains. Possibilité de 2 box fermés en sous-sol. La maison bénéficiera entre autre de la fibre pré-équipée, de volets roulants électriques avec une commande centralisée, de robinets extérieurs, domotique permettant la gestion du chauffage et des volets, de double vitrage, d'un vidéophone en couleur, contrôle d'accès à distance via téléphone ou tablette,... Frais de notaire offerts !! Prix promoteur. http://www.cannes-azur-immobilier.com CANNES AZUR IMMOBILIER secteurs CANNES, LE CANNET, MOUGINS, MOUANS-SARTOUX, VALBONNE, LA ROQUETTE SUR SIAGNE... [Coordonnées masquées] http://www.cannes-azur-immobilier.com CANNES AZUR IMMOBILIER secteurs CANNES, LE CANNET, MOUGINS, MOUANS-SARTOUX, LA ROQUETTE SUR SIAGNE... [Coordonnées masquées]
Voir plus

Bien en copropriété.
Honoraires à la charge du vendeur.
Barème des honoraires

Prêt immobilier

Vous souhaitez connaître votre capacité d’emprunt et trouver le meilleur crédit immobilier ?
Réaliser une simulation gratuite

Maison à LE CANNET
Maison à LE CANNET
Maison à LE CANNET
Maison à LE CANNET
Maison à LE CANNET
Maison à LE CANNET
Maison à LE CANNET
Maison à LE CANNET
Ce site est protégé par reCAPTCHA la Politique de confidentialité et les Conditions d’utilisation de Google s’appliquent.
Obtenir un prêt immobilier au meilleur taux ?

En poursuivant votre navigation sans modifier vos paramètres, vous acceptez l'utilisation de cookies susceptibles de réaliser des statistiques de visite. Cliquez ici pour plus d'informations