Bénéficiez des services de nos partenaires locaux soigneusement sélectionnés
pour vous accompagner dans votre parcours d'achat immobilier

Voir tous les partenaires locaux

Appartement 71m² à bordeaux

— Bordeaux 33000 —
339 000 €
71 m²
3 pièces
parkingbalcon/terrasseascenseur

Nos partenaires locaux
Sous compromis : DU VOLUME - UNE TERRASSE - UN PARKING - DISPONIBLE

Dans une résidence intimiste de seulement 21 lots situé aux portes du centre ville de Bordeaux.
La résidence aux lignes à la fois sophistiquées et minimalistes est édifiée avec des parkings et/ou box en sous-sol en supplément.
Au coeur de la résidence vous trouverez un espace vert.

L'appartement a été étudié avec soin pour laisser rentrer la lumière. Il se situe au R+1 de la résidence.

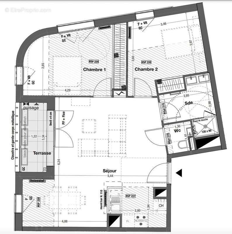
Sa surface globale habitable est de 71m2.

Vous trouverez une entrée avec WC indépendant et un séjour/cuisine de 36m2 donnant sur sa terrasse. Coté nuit, deux chambres de 13m2 et 15m2 avec chacune son placard, ainsi qu'une salle d'eau.

Un parking en SUS obligatoire complète le bien (20 000€).

- Frais de Notaire réduit
- Garanties
- RT 2012
- Exonération de taxe Foncière
- Disponible
- ...

DU VOLUME - UNE TERRASSE - UN PARKING - DISPONIBLE

Honoraires à la charge du vendeur. Dans une copropriété de 21 lots. Aucune procédure n'est en cours. DPE en cours. Les informations sur les risques auxquels ce bien est exposé sont disponibles sur le site Géorisques : georisques.gouv.fr. Ce bien vous est proposé par un agent commercial (Entreprise individuelle).

Votre conseiller RH Patrimoine : Maxime HERVE
Agent commercial (Entreprise individuelle)
RSAC 133095555 J
RCP 13309666 J
Voir plus

Référence: VA2456-RHPATRI
Bien en copropriété. Nombre de lots : 21.
Honoraires à la charge du vendeur.
Barème des honoraires

Prêt immobilier

Vous souhaitez connaître votre capacité d’emprunt et trouver le meilleur crédit immobilier ?
Réaliser une simulation gratuite

Appartement à BORDEAUX
Appartement à BORDEAUX
Appartement à BORDEAUX
Appartement à BORDEAUX
Appartement à BORDEAUX
Appartement à BORDEAUX
Appartement à BORDEAUX
Appartement à BORDEAUX
Ce site est protégé par reCAPTCHA la Politique de confidentialité et les Conditions d’utilisation de Google s’appliquent.
Obtenir un prêt immobilier au meilleur taux ?

En poursuivant votre navigation sans modifier vos paramètres, vous acceptez l'utilisation de cookies susceptibles de réaliser des statistiques de visite. Cliquez ici pour plus d'informations