Bénéficiez des services de nos partenaires locaux soigneusement sélectionnés
pour vous accompagner dans votre parcours d'achat immobilier

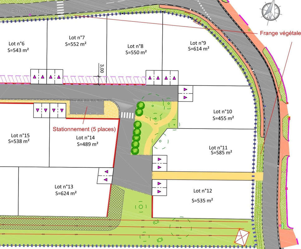
Terrain à bâtir de 455 m2 viabilisé

— Fontcouverte 17100 —
46 225 €
455 m²
jardin

Nos partenaires locaux
Aux portes de SAINTES, dans un environnement vert et calme et à 30 minutes des plages, BFG IMMOBILIER présente en exclusivité dans petit lotissement situé à proximité du centre bourg, terrain à bâtir viabilisé avec tout à l'égout, d'une superficie de 455 m2.
Lot No 10.
Libre de constructeur.
Zone UB.
Non soumis au DPE.
 
Les informations sur les risques auxquels ce bien est exposé sont disponibles sur le site Géorisques : www. georisques. gouv. fr

Honoraires d'agence de 6.94% à la charge de l'acquéreur
Barème des honoraires

Prêt immobilier

Vous souhaitez connaître votre capacité d’emprunt et trouver le meilleur crédit immobilier ?
Réaliser une simulation gratuite

Terrain à FONTCOUVERTE
Terrain à FONTCOUVERTE
Terrain à FONTCOUVERTE
Terrain à FONTCOUVERTE
Terrain à FONTCOUVERTE
Ce site est protégé par reCAPTCHA la Politique de confidentialité et les Conditions d’utilisation de Google s’appliquent.
Obtenir un prêt immobilier au meilleur taux ?

En poursuivant votre navigation sans modifier vos paramètres, vous acceptez l'utilisation de cookies susceptibles de réaliser des statistiques de visite. Cliquez ici pour plus d'informations