Bénéficiez des services de nos partenaires locaux soigneusement sélectionnés
pour vous accompagner dans votre parcours d'achat immobilier

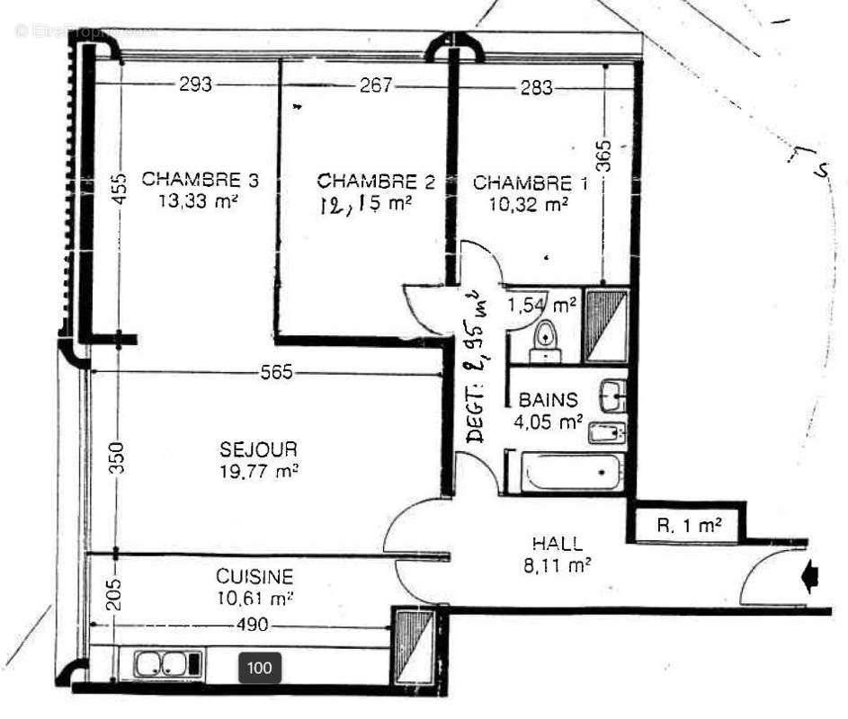
Appartement 84m² à paris-13e

— Paris-13e 75013 —
682 000 €
84 m²
4 pièces

Nos partenaires locaux
Appartement 4 pièces en bon état situé à proximité du Métro Olympiade, d'une surface de 84m²(loi Carrez) au 20ème étages sans vis-a-vis comprenant: une grande entrée avec plusieurs rangements ,double séjour baigné de lumières,cuisine US fonctionnelle et parfaitement agencée, trois chambres spacieuses sans vis-a-vis,une salle de bains et WC séparé.
A cela vous bénéficierez d'une place de parking privative et d'une grande cave.
Très belle prestation de l immeuble vous bénéficierez de services de gardiennage, système de télésurveillance 24/24 7/7
Chauffage et eau chaude collectifs.
Appartement lumineux avec vue dégagée sur paris.

Les informations sur les risques auxquels ce bien est exposé sont disponibles sur le site Géorisques : www.georisques.gouv.fr
Voir plus

Référence: MODAI172
Honoraires à la charge du vendeur.
DPE
A
B
C
D
E
F
G
GES
A
B
C
D
E
F
G

Prêt immobilier

Vous souhaitez connaître votre capacité d’emprunt et trouver le meilleur crédit immobilier ?
Réaliser une simulation gratuite

Appartement à PARIS-13E
Appartement à PARIS-13E
Appartement à PARIS-13E
Appartement à PARIS-13E
Appartement à PARIS-13E
Appartement à PARIS-13E
Appartement à PARIS-13E
Appartement à PARIS-13E
Ce site est protégé par reCAPTCHA la Politique de confidentialité et les Conditions d’utilisation de Google s’appliquent.
Obtenir un prêt immobilier au meilleur taux ?

En poursuivant votre navigation sans modifier vos paramètres, vous acceptez l'utilisation de cookies susceptibles de réaliser des statistiques de visite. Cliquez ici pour plus d'informations