Bénéficiez des services de nos partenaires locaux soigneusement sélectionnés
pour vous accompagner dans votre parcours d'achat immobilier

A vendre appartement 120m2 75019

— Paris-19e 75019 —
645 000 €
112 m²
6 pièces
balcon/terrasseascenseuraccès handicapé

Nos partenaires locaux
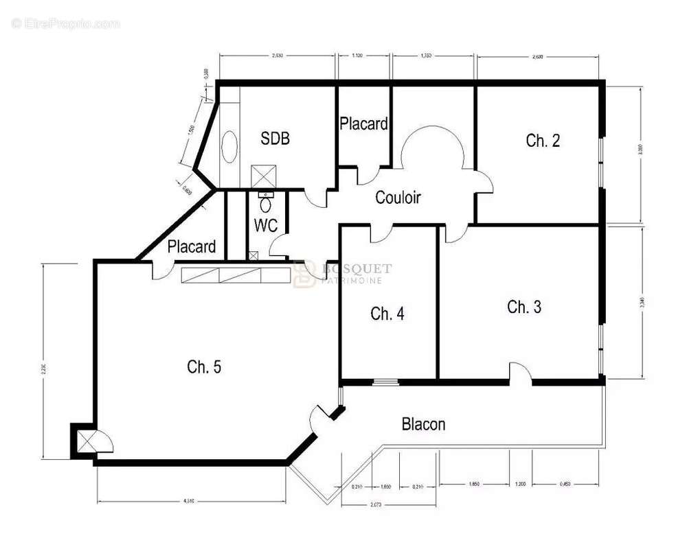
Votre Agence immobilière TROPHÉE IMMOBILIER vous propose en
exclusivité, ce 5 pièces de 112m² (103,9m² LC ) en duplex au
dernier étage d'une copropriété de standing (Les Eiders) avec
ascenseurs, caves, parkings, à proximité de toutes commodités et
à quelques pas du canal de l'Ourcq.
Niché au 12ème et dernier étage, sur deux niveaux, vous
apprécierez le charme et l'ambiance cocooning de ce duplex
lumineux.
Il se compose au premier niveau d'un beau séjour, d'une cuisine
séparée (possibilité d'ouvrir la cuisine et entrée sur séjour), d'une
chambre et de WC séparés avec placards.
A l'étage, vous retrouverez trois chambres, un bureau, un dressing,
une salle de bains spacieuse, WC séparés et de nombreux autres
rangements.
Un balcon filant de plus de 10m² est présent à l'étage et permet de
vous faire profiter d'une vue dégagée sur la Géode et la Villette.
Une cave et un parking complètent ce bien.
Contacter sans plus tarder votre agence TROPHÉE IMMOBILIER pour une
première visite de votre futur bien !
Voir plus

Référence: 83270912

Prêt immobilier

Vous souhaitez connaître votre capacité d’emprunt et trouver le meilleur crédit immobilier ?
Réaliser une simulation gratuite

Appartement à PARIS-19E
Appartement à PARIS-19E
Appartement à PARIS-19E
Appartement à PARIS-19E
Ce site est protégé par reCAPTCHA la Politique de confidentialité et les Conditions d’utilisation de Google s’appliquent.
Obtenir un prêt immobilier au meilleur taux ?

En poursuivant votre navigation sans modifier vos paramètres, vous acceptez l'utilisation de cookies susceptibles de réaliser des statistiques de visite. Cliquez ici pour plus d'informations