Bénéficiez des services de nos partenaires locaux soigneusement sélectionnés
pour vous accompagner dans votre parcours d'achat immobilier

Appartement 37m² à schiltigheim

— Schiltigheim 67300 —
202 000 €
37 m²
1 pièce
balcon/terrasseascenseur

Nos partenaires locaux
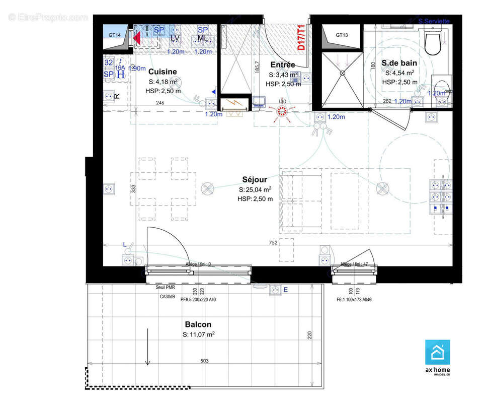
APPARTEMENT T1 AVEC TERRASSE - INTÉRIEUR NEUF

À vendre à Schiltigheim (67300) : appartement neuf de 37 m² au 1er étage d'un immeuble. Cet appartement 1 pièce offre une salle de bains. En complément, on trouve une terrasse (11 m²). Vue dégagée.

À proximité : bus (lignes 50, H et L3), tramways (lignes B et E), établissements scolaires, restaurants, théâtre, commerces, supermarchés, boulangeries, épiceries et boucheries. Marché Passage du cimetière le jeudi matin. Aéroport Strasbourg-Entzheim.

Cet appartement est proposé à l'achat pour 210 800 €. Les frais d'agence sont à la charge du vendeur. Prix proposé en TVA 5.5% sous conditions nous consulter

Contactez l'un de nos conseillers immobilier pour obtenir de plus amples renseignements sur cet appartement en vente à Schiltigheim.

Les informations sur les risques auxquels ce bien est exposé sont disponibles sur le site Géorisques : www.georisques.gouv.fr Non soumis au DPE N'hésitez pas à nous contacter pour d'autres renseignements ou pour une visite.

Honoraires à la charge du vendeur. Non soumis au DPE. Les informations sur les risques auxquels ce bien est exposé sont disponibles sur le site Géorisques : georisques.gouv.fr.

Carte pro. CPI 67[Coordonnées masquées]14808
AC ADC 67[Coordonnées masquées]43374.
Ax'Home Immobilier - 2 agences de proximité pour mieux vous accompagner.

Oberhausbergen - 104A Route de Saverne (en face de Prowin)
Wiwersheim - 33 Allée de l'Economie (Galerie 'Au Jardin des Sens' au dessus d'Esprit Pain)
Voir plus

Référence: VA6034-AXHOME2
Honoraires à la charge du vendeur.
Barème des honoraires

Prêt immobilier

Vous souhaitez connaître votre capacité d’emprunt et trouver le meilleur crédit immobilier ?
Réaliser une simulation gratuite

Appartement à SCHILTIGHEIM
Appartement à SCHILTIGHEIM
Appartement à SCHILTIGHEIM
Appartement à SCHILTIGHEIM
Appartement à SCHILTIGHEIM
Appartement à SCHILTIGHEIM
Appartement à SCHILTIGHEIM
Appartement à SCHILTIGHEIM
Ce site est protégé par reCAPTCHA la Politique de confidentialité et les Conditions d’utilisation de Google s’appliquent.
Obtenir un prêt immobilier au meilleur taux ?

En poursuivant votre navigation sans modifier vos paramètres, vous acceptez l'utilisation de cookies susceptibles de réaliser des statistiques de visite. Cliquez ici pour plus d'informations