Bénéficiez des services de nos partenaires locaux soigneusement sélectionnés
pour vous accompagner dans votre parcours d'achat immobilier

Voir tous les partenaires locaux

Appartement 65m² à strasbourg

— Strasbourg 67000 —
395 000 €
65 m²
3 pièces
parkingbalcon/terrasse

Nos partenaires locaux
ANOVA IMMOBILIER vous propose à prix promoteur sans frais supplémentaires : Le programme ROBERST'Ô
Rue de la Bussière 67000 STRASBOURG

Livraison prévue : 4ème trimestre 2025
Actabilité : Immédiate
Fiscalité : Pinel / LMNP
Destination : Accession ou investissement

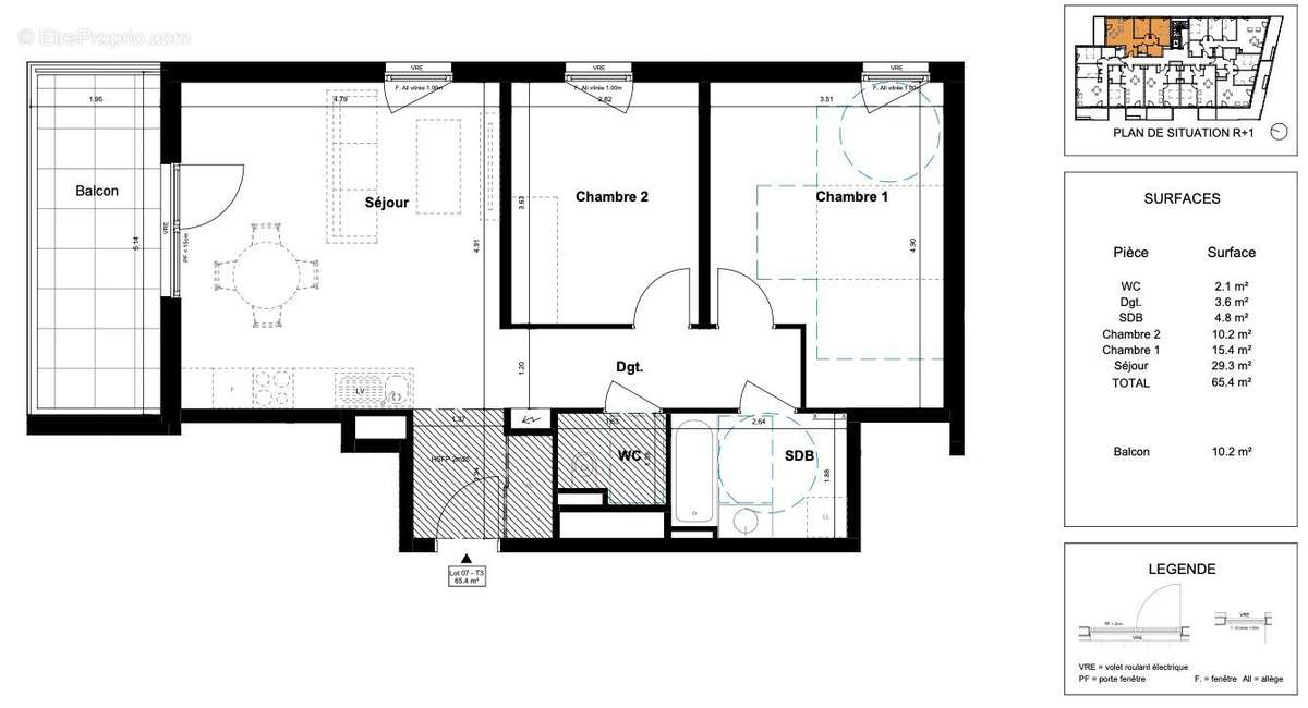
T3 65,40 m2 avec un séjour / cuisine ouverte de 29 m2, deux chambres et une salle de bain.
Balcon de 10 m2.
Parking privatif.

Découvrez notre tout nouveau projet à taille humaine, en avant-première. Il se compose de seulement 15 appartements et est idéalement situé en plein coeur du quartier de la Robertsau à Strasbourg. Cette résidence chaleureuse, nichée dans un environnement résidentiel, est à deux pas de nombreux commerces et restaurants, offrant ainsi une situation privilégiée. Ne tardez pas à explorer les nombreux avantages de nos appartements, allant du T2 au T5, tous avec des espaces de stationnement, en prenant contact avec votre conseiller ANOVA.


Situation :
Proximité centre ville
À 20 mn de la gare
À 30min de l'aéroport
Commerces et centres commerciaux à proximité
Proche des transports en commun
À proximité de la frontière allemande

Les points forts du bien :

Proximité centre ville
Quartier prisé de la Robertsau
Espaces extérieurs Parking
Copropriété à taille humaine
Proches des commerces et transports

Pour plus de renseignements,
N'hésitez pas à nous appeler pour connaitre la disponibilité des autres lots.

Contactez nous.
ANOVA IMMOBILIER [Coordonnées masquées]

Honoraires à la charge du vendeur. Dans une copropriété de 15 lots. Aucune procédure n'est en cours. Non soumis au DPE. Les informations sur les risques auxquels ce bien est exposé sont disponibles sur le site Géorisques : georisques.gouv.fr.

Carte pro. CPI67[Coordonnées masquées]23425
Voir plus

Référence: VA2795-ANOVA
Bien en copropriété. Nombre de lots : 15.
Honoraires à la charge du vendeur.
Barème des honoraires

Prêt immobilier

Vous souhaitez connaître votre capacité d’emprunt et trouver le meilleur crédit immobilier ?
Réaliser une simulation gratuite

Appartement à STRASBOURG
Appartement à STRASBOURG
Ce site est protégé par reCAPTCHA la Politique de confidentialité et les Conditions d’utilisation de Google s’appliquent.
Obtenir un prêt immobilier au meilleur taux ?

En poursuivant votre navigation sans modifier vos paramètres, vous acceptez l'utilisation de cookies susceptibles de réaliser des statistiques de visite. Cliquez ici pour plus d'informations