Bénéficiez des services de nos partenaires locaux soigneusement sélectionnés
pour vous accompagner dans votre parcours d'achat immobilier

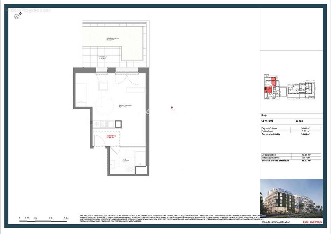
Résidence senior - appartement t1 bis - rouen rive droite centre - 36.64m²

— Rouen 76000 —
245 000 €
37 m²
1 pièce
balcon/terrasseascenseur

Nos partenaires locaux
Vos agences ESPACE IMMO vous proposent cette magnifique résidence située en plein coeur de Rouen, proche de toutes les commodités (transports en commun, commerces ...) entre les DOCKS 76 et la Préfecture. Nous vous proposons dans cette résidence de 7 étages, le dernier appartement T1 Bis comprenant : un spacieux séjour-cuisine et une salle d'eau. Vous bénéficierez d'une terrasse privative pour profiter des beaux jours et également de deux places de parking ! Livraison prévue au premier semestre 2027. Cette résidence bénéficie d'une architecture de qualité avec des logements adaptés et ergonomiques. Vous y retrouverez également des lieux de vie atypiques, des espaces communs dédiés aux habitants pour se relaxer, faire du sport et profiter. Salle de sport, salon bien-être et esthétique, atelier cuisine, salon TV, atelier bricolage, buanderie, bibliothèque, terrasse/rooftop, jardin et potager ... Tout a été pensé pour le confort des habitants ! En résumé, un appartement moderne, qui respectera la réglementation thermique RT 2012, idéalement situé à deux pas des transports en commun et des commerces. N'hésitez plus, contacter votre agence ESPACE IMMO pour vous présenter ce beau projet au [Coordonnées masquées] ! Les informations sur les risques auxquels ce bien est exposé sont disponibles sur le site Géorisques : www.georisques.gouv.fr. Copropriété de 92 lots - dont 61 lots habitation. (Pas de procédure en cours). Charges annuelles : 1000 euros.
Voir plus

Référence: 1741
Bien en copropriété. Nombre de lots : 92. Charges de copropriété : 1000 €.
Honoraires à la charge du vendeur.
Barème des honoraires

Prêt immobilier

Vous souhaitez connaître votre capacité d’emprunt et trouver le meilleur crédit immobilier ?
Réaliser une simulation gratuite

Appartement à ROUEN
Appartement à ROUEN
Ce site est protégé par reCAPTCHA la Politique de confidentialité et les Conditions d’utilisation de Google s’appliquent.
Obtenir un prêt immobilier au meilleur taux ?

En poursuivant votre navigation sans modifier vos paramètres, vous acceptez l'utilisation de cookies susceptibles de réaliser des statistiques de visite. Cliquez ici pour plus d'informations