Bénéficiez des services de nos partenaires locaux soigneusement sélectionnés
pour vous accompagner dans votre parcours d'achat immobilier

Terrain 488m² à fontenay-sous-bois

— Fontenay-Sous-Bois 94120 —
1 785 000 €
488 m²

Nos partenaires locaux
Cécile Objois Immobilier vous propose en exclusivité :
un projet idéal pour une société, un artisan souhaitant avoir ses locaux, son atelier, son stockage, ses stationnements ainsi que son habitation au même endroit aux portes de Paris.

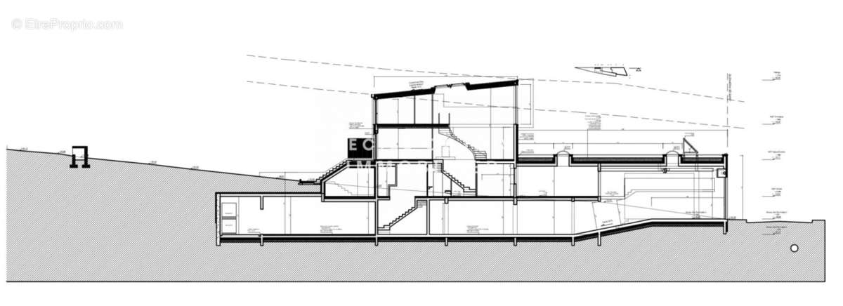
le tout est édifié sur un terrain de 488m2,
une construction de 618m2, achevée de gros-oeuvre, repartie comme suit :

- un sous sol de 246m2 ainsi que qu'une partie atelier de 122m2 avec une hauteur sous plafond de 5,1m
- un rez de chaussé de 111m2
- un 1er niveau de 62m2 avec terrasse jardin de 181m2
- un dernier niveau de 62m2, vue surplombante sur Paris

A prévoir, un renouvellement du permis de construire suite à la péremption de ce dernier et second-oeuvre.

Honoraires inclus de 5% TTC à la charge de l'acquéreur. Prix hors honoraires 1 700 000 €. Les informations sur les risques auxquels ce bien est exposé sont disponibles sur le site Géorisques : georisques.gouv.fr.

Votre conseiller Cécile Objois IMMOBILIER : Daniel BAILLIN
Agent commercial (Entreprise individuelle)
RSAC 920997327
RCP ALLIANZ ACTIF PRO 57604175.
Nous vous rappelons que suite à L'article L. 561-5 du Code monétaire et financier, la copie de la pièce d'identité de tous les visiteurs sera demandée, si vous n'avez pas de copie, une photo de votre pièce d'identité sera effectuée avant la visite. Nous vous remercions de faciliter cette démarche à votre conseiller.
Voir plus

Référence: VT069-OBJOIS
Honoraires d'agence de 5% à la charge de l'acquéreur
Barème des honoraires

Prêt immobilier

Vous souhaitez connaître votre capacité d’emprunt et trouver le meilleur crédit immobilier ?
Réaliser une simulation gratuite

Terrain à FONTENAY-SOUS-BOIS
Terrain à FONTENAY-SOUS-BOIS
Ce site est protégé par reCAPTCHA la Politique de confidentialité et les Conditions d’utilisation de Google s’appliquent.
Obtenir un prêt immobilier au meilleur taux ?

En poursuivant votre navigation sans modifier vos paramètres, vous acceptez l'utilisation de cookies susceptibles de réaliser des statistiques de visite. Cliquez ici pour plus d'informations