Bénéficiez des services de nos partenaires locaux soigneusement sélectionnés
pour vous accompagner dans votre parcours d'achat immobilier

Viager libre - terrasse - vue sacré coeur 52m2

— Paris-18e 75018 —
450 000 €
53 m²
balcon/terrasse

Nos partenaires locaux
Appartement LIBRE de 52,87m2, que vous pouvez immédiatement occuper, vendu en viager libre par une dame de 74 ans :

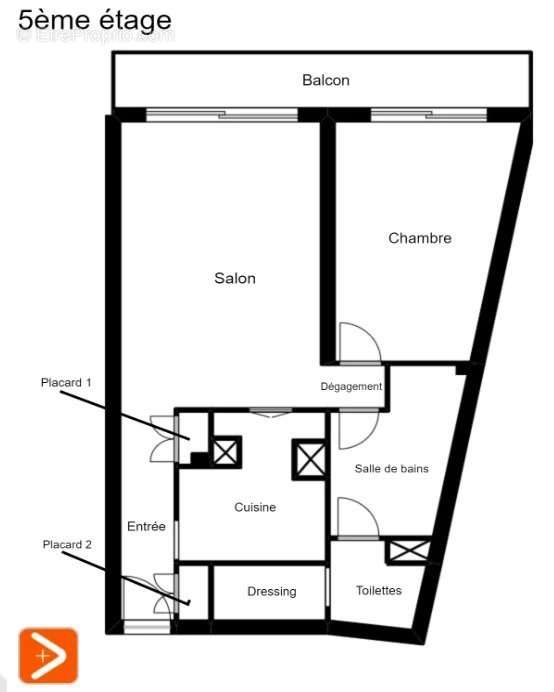
• Un appartement comprenant une entrée, une cuisine équipée, un sdb avec wc, une pièce principale et un balcon de 9m2 – 5ème étage avec ascenseur
• Une cave individuelle
• Un box fermé avec une place et demie

Vendu en viager libre, vous pouvez l'occuper dès maintenant.

Valeur Vénale estimée : 450 000 euros

Bouquet : 231 500 000 euros
Rente : 1 400 € (largement financé par un loyer si vous décidez de le louer)

Localisation : Rue du Poteau, à deux pas de la place Jules Joffrin.
Métro Jules Joffrin (Ligne 12) et métro Simplon (Ligne 4)

Les parkings peuvent avoir une recharge pour les voitures électriques

L’acquéreur perçoit les fruits de la location dès la signature de l’acte authentique de vente.

DPE : D (210kWh/m2/an
GES : C (15kgCO2/m2/an)
Estimation des couts annuels d’énergie du logement T2 : 720 à 1030 euros par an

Chauffage collectif gaz
Charges mensuelles : 244 euros
476/100 023 tantièmes
617 lots dont 194 à usage d’habitation

Veuillez privilégier le contact par téléphone svp.

Honoraires à charge acquéreur – 7 %ttc de la valeur vénale
Les informations sur les risques auxquels ce bien est exposé sont disponibles sur le site Géorisques : www.georisques.gouv.fr
Victorine Immobilier – SASU - RCS de Lyon - SIREN 838 606 945 – Capital de 3000€
mail : [Coordonnées masquées] TVA FR38838606945 CPI 69[Coordonnées masquées]31 034
non détention de fonds
Voir plus

Référence: 83642406
DPE
A
B
C
D
E
F
G
GES
A
B
C
D
E
F
G

Prêt immobilier

Vous souhaitez connaître votre capacité d’emprunt et trouver le meilleur crédit immobilier ?
Réaliser une simulation gratuite

Appartement à PARIS-18E
Appartement à PARIS-18E
Appartement à PARIS-18E
Appartement à PARIS-18E
Appartement à PARIS-18E
Appartement à PARIS-18E
Appartement à PARIS-18E
Appartement à PARIS-18E
Appartement à PARIS-18E
Appartement à PARIS-18E
Appartement à PARIS-18E
Appartement à PARIS-18E
Appartement à PARIS-18E
Appartement à PARIS-18E
Appartement à PARIS-18E
Appartement à PARIS-18E
Ce site est protégé par reCAPTCHA la Politique de confidentialité et les Conditions d’utilisation de Google s’appliquent.
Obtenir un prêt immobilier au meilleur taux ?

En poursuivant votre navigation sans modifier vos paramètres, vous acceptez l'utilisation de cookies susceptibles de réaliser des statistiques de visite. Cliquez ici pour plus d'informations