Bénéficiez des services de nos partenaires locaux soigneusement sélectionnés
pour vous accompagner dans votre parcours d'achat immobilier

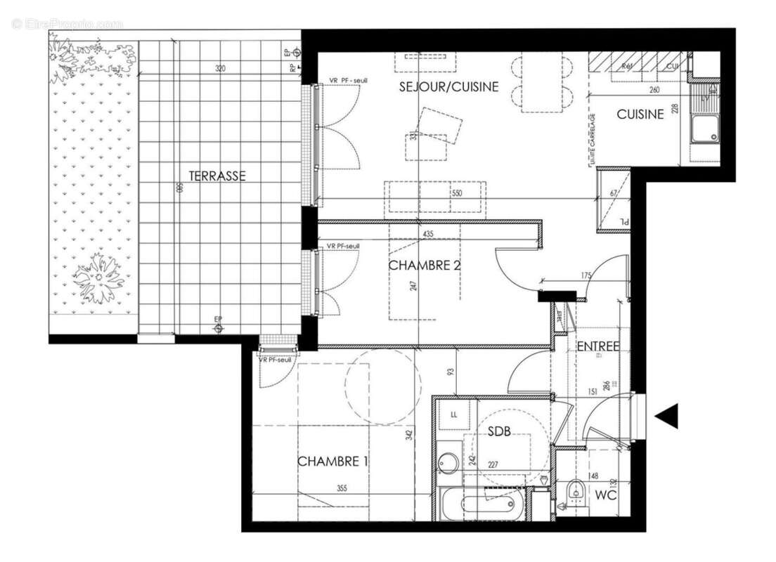
Chaville -92370 - centre ville -3 pièces 63 m² 604 000 avec cave et parking en sous-sol neuf fnr garantie décennale livraison

— Chaville 92370 —
604 000 €
63 m² / 67 m²
3 pièces
parkingbalcon/terrassejardinascenseur

Nos partenaires locaux
CHAVILLE - 92370 - Dernières opportunités ! Dans une nouvelle résidence de Standing en plein centre de Chaville, appartement de 3 pièces en rez-de-jardin , comprenant un séjour, une cuisine ouverte et 2 chambres le tout donnant sur un jardin de 80 m² dont une terrasse de 18 m² environ. Prestations haut de gamme. Éligible PTZ et Pinel zone A Bis. Les écoles et les transports sont accessibles à moins de 400 m. Proximité des forêts de Meudon et Fosses-Reposes. Parking en sous-sol et cave. Dernières normes de constructions et d'isolation, garantie décennale. Livraison prévue pour fin 2025. Copropriété de 50 lots - dont 24 lots habitation. (Pas de procédure en cours). Charges annuelles : 1900 euros.
Voir plus

Référence: 9000
Bien en copropriété. Nombre de lots : 50. Charges de copropriété : 1900 €.
Honoraires à la charge du vendeur.
Barème des honoraires

Prêt immobilier

Vous souhaitez connaître votre capacité d’emprunt et trouver le meilleur crédit immobilier ?
Réaliser une simulation gratuite

Appartement à CHAVILLE
Appartement à CHAVILLE
Appartement à CHAVILLE
Appartement à CHAVILLE
Appartement à CHAVILLE
Ce site est protégé par reCAPTCHA la Politique de confidentialité et les Conditions d’utilisation de Google s’appliquent.
Obtenir un prêt immobilier au meilleur taux ?

En poursuivant votre navigation sans modifier vos paramètres, vous acceptez l'utilisation de cookies susceptibles de réaliser des statistiques de visite. Cliquez ici pour plus d'informations