Bénéficiez des services de nos partenaires locaux soigneusement sélectionnés
pour vous accompagner dans votre parcours d'achat immobilier

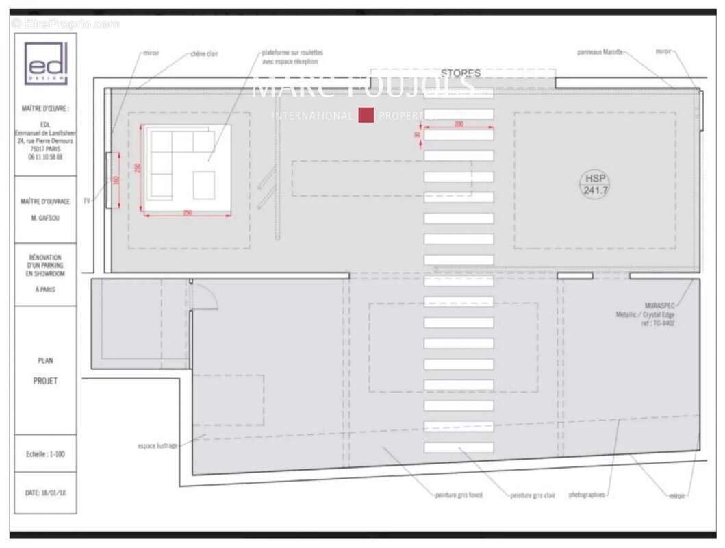
Paris viii - rue berri - parking privé 11 places

— Paris-8e 75008 —
2 000 000 €
parking

Nos partenaires locaux
Idéal investisseurs, collectionneurs, flotte de voitures, show-room.
Marc Foujols tient à votre disposition ce bien
extrêmement rare car il rassemble de nombreux avantages.
Parking privé groupé de 11 places (3 doubles et 5 simples) au
1er sous-sol d'un immeuble du 8ème arrondissement de Paris,
à deux pas des Champs-Elysées, fermé par rideau métallique
commandé.

Référence: P9578
Barème des honoraires

Prêt immobilier

Vous souhaitez connaître votre capacité d’emprunt et trouver le meilleur crédit immobilier ?
Réaliser une simulation gratuite

Parking à PARIS-8E
Parking à PARIS-8E
Parking à PARIS-8E
Parking à PARIS-8E
Parking à PARIS-8E
Parking à PARIS-8E
Parking à PARIS-8E
Parking à PARIS-8E
Parking à PARIS-8E
Parking à PARIS-8E
Parking à PARIS-8E
Ce site est protégé par reCAPTCHA la Politique de confidentialité et les Conditions d’utilisation de Google s’appliquent.
Obtenir un prêt immobilier au meilleur taux ?

En poursuivant votre navigation sans modifier vos paramètres, vous acceptez l'utilisation de cookies susceptibles de réaliser des statistiques de visite. Cliquez ici pour plus d'informations