Bénéficiez des services de nos partenaires locaux soigneusement sélectionnés
pour vous accompagner dans votre parcours d'achat immobilier

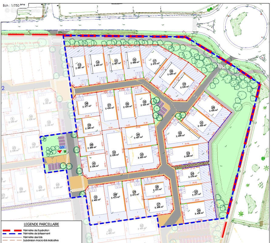
Terrain a batir bretteville sur odon - 410 m2 - lot 207

— Bretteville-Sur-Odon 14760 —
123 000 €
410 m²
jardinascenseur

Nos partenaires locaux
Vous souhaitez acheter un terrain à BRETTEVILLE SUR ODON?Parcelles viabilisées et Libre choix constructeur Permis de construire déposable dès à présent Plusieurs lots sont disponibles, contactez-nous pour plus d'informations.

Référence: 755
Barème des honoraires
Terrain à BRETTEVILLE-SUR-ODON
Terrain à BRETTEVILLE-SUR-ODON
Terrain à BRETTEVILLE-SUR-ODON
Géorisques

Les informations sur les risques auxquels ce bien est exposé sont disponibles sur le site Géorisques : www.georisques.gouv.fr

Ce site est protégé par hCaptcha Politique de confidentialité et Conditions d’utilisation s’appliquent.