Bénéficiez des services de nos partenaires locaux soigneusement sélectionnés
pour vous accompagner dans votre parcours d'achat immobilier

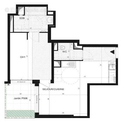
Nue propriété - rdc 61,24m²

— Neuilly-Sur-Seine 92200 —
468 300 €
48 m² / 7 m²
2 pièces
jardinascenseur

Nos partenaires locaux
OPPORTUNITÉ D'INVESTISSEMENT EN NUE-PROPRIÉTÉ
Situé au 124 avenue Achille Perreti, 92200 Neuilly-sur-Seine, à 4 minutes à pied du métro "Pont de Neuilly" et à moins de 100m de l'arrêt de bus "Rue de l'Eglise".
Dans une copropriété haut de gamme avec gardien qui sera livrée au 1er trimestre 2025, un appartement de 2 pièces de 47,63m² situé au rez-de-chaussée.
Il est composé d'une chambre, séjour/cuisine donnant sur un jardin privatif de 7,10m², salle de bain avec wc.
Une place de parking complète ce bien.
Voir plus

Référence: 83794651
Barème des honoraires

Prêt immobilier

Vous souhaitez connaître votre capacité d’emprunt et trouver le meilleur crédit immobilier ?
Réaliser une simulation gratuite

Appartement à NEUILLY-SUR-SEINE
Appartement à NEUILLY-SUR-SEINE
Appartement à NEUILLY-SUR-SEINE
Ce site est protégé par reCAPTCHA la Politique de confidentialité et les Conditions d’utilisation de Google s’appliquent.
Obtenir un prêt immobilier au meilleur taux ?

En poursuivant votre navigation sans modifier vos paramètres, vous acceptez l'utilisation de cookies susceptibles de réaliser des statistiques de visite. Cliquez ici pour plus d'informations