Appartement 52m² à montriond

— Montriond 74110 —
n.c. €
53 m²
3 pièces
parkingbalcon/terrasseascenseur

Nous sommes ravis de présenter ce magnifique appartement de deux chambres, situé au premier étage d'un tout nouveau programme immobilier de qualité au coeur du village nommé « Le KAIRN ».

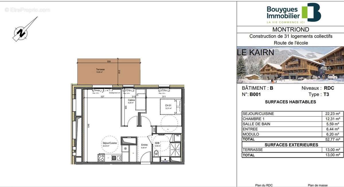
L'appartement B001 situé au Rez-de-jardin offre une chambre et une chambre cabine avec fenêtre. Profitez d'une terrasse privée pour vous détendre en plein air, offrant un espace extérieur idéal pour prendre un café ou profiter de l'air frais du village. Une salle de bain et un WC assurent une fonctionnalité optimale pour les occupants. L'entrée mène à un séjour lumineux combiné à une cuisine moderne (non incluse), offrant un espace de vie convivial.

Une place de parking couverte et une cave sont incluses pour votre confort.

Ce nouvel appartement bénéficie de finitions de qualité et d'une disposition intelligente. Les chambres offrent des espaces de repos paisibles, tandis que le séjour et la future cuisine créent une atmosphère accueillante et moderne. La terrasse privée est un lieu parfait pour profiter de l'extérieur tout en étant à proximité du coeur animé du village.

Idéalement situé au centre du village, cet appartement offre un accès facile aux commerces locaux, aux restaurants, aux écoles et à toutes les commodités. Vous pourrez profiter de la vie villageoise tout en restant proche des activités et des services.

Contactez nous dès maintenant pour organiser une visite et découvrir en personne ce superbe appartement, offrant un cadre de vie idéal au centre du village pour vous et vos proches.

Dans une copropriété de 31 lots. Aucune procédure n'est en cours. Non soumis au DPE. Les informations sur les risques auxquels ce bien est exposé sont disponibles sur le site Géorisques : georisques.gouv.fr.
Voir plus

Référence: VA2243-AGENCEOLIVIER
Bien en copropriété. Nombre de lots : 31.
Honoraires à la charge du vendeur.
Barème des honoraires

Prêt immobilier

Vous souhaitez connaître votre capacité d’emprunt et trouver le meilleur crédit immobilier ?
Réaliser une simulation gratuite

Appartement à MONTRIOND
Appartement à MONTRIOND
Appartement à MONTRIOND
Appartement à MONTRIOND
Appartement à MONTRIOND
Appartement à MONTRIOND
Ce site est protégé par reCAPTCHA la Politique de confidentialité et les Conditions d’utilisation de Google s’appliquent.
Obtenir un prêt immobilier au meilleur taux ?

En poursuivant votre navigation sans modifier vos paramètres, vous acceptez l'utilisation de cookies susceptibles de réaliser des statistiques de visite. Cliquez ici pour plus d'informations