Bénéficiez des services de nos partenaires locaux soigneusement sélectionnés
pour vous accompagner dans votre parcours d'achat immobilier

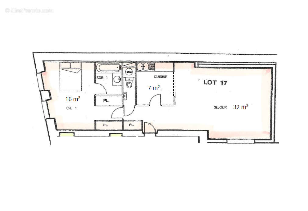
Appartement st germain en laye - 2 pièce(s) - 61 m2

— Saint-Germain-En-Laye 78100 —
350 000 €
61 m²
2 pièces

Nos partenaires locaux
Le Cabinet Alpha Foncier a le plaisir de vous présenter dans le centre historique de Saint germain en Laye à proximité de toutes commodités et de tous commerces, au sein d'un immeuble de très bon standing, un appartement 2 pièces comprenant : une entrée, un salon double, exposition ouest, un bureau, une cuisine équipée avec coin repas, une salle de bains et un WC séparé. Une cave complète ce bien. N'hésitez pas à nous contacter pour organiser une visite ! (4.00 % honoraires TTC à la charge de l'acquéreur.)
Voir plus

Référence: 5171
Bien en copropriété.
Honoraires d'agence de 4% à la charge de l'acquéreur
Barème des honoraires
DPE
A
B
C
D
E
F
G
GES
A
B
C
D
E
F
G

Prêt immobilier

Vous souhaitez connaître votre capacité d’emprunt et trouver le meilleur crédit immobilier ?
Réaliser une simulation gratuite

Appartement à SAINT-GERMAIN-EN-LAYE
Appartement à SAINT-GERMAIN-EN-LAYE
Appartement à SAINT-GERMAIN-EN-LAYE
Appartement à SAINT-GERMAIN-EN-LAYE
Appartement à SAINT-GERMAIN-EN-LAYE
Appartement à SAINT-GERMAIN-EN-LAYE
Appartement à SAINT-GERMAIN-EN-LAYE
Ce site est protégé par reCAPTCHA la Politique de confidentialité et les Conditions d’utilisation de Google s’appliquent.
Obtenir un prêt immobilier au meilleur taux ?

En poursuivant votre navigation sans modifier vos paramètres, vous acceptez l'utilisation de cookies susceptibles de réaliser des statistiques de visite. Cliquez ici pour plus d'informations