Eze vue mer, maison 6p 140m2 à rénover expo sud

— Eze 06360 —
1 295 000 €
140 m² / 2 455 m²
6 pièces
parkingbalcon/terrassejardin

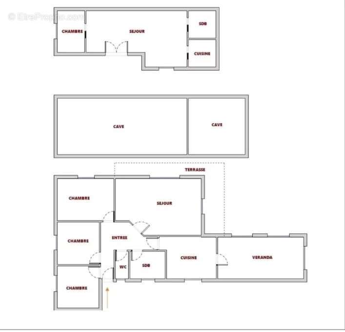
SOUS COMPROMIS Située entre Nice et Monaco, Villa à rénover 6 pièces de 140 m2 , 2450 m2 de terrain piscinable, exposée Sud avec une vue imprenable sur la mer et le village médiéval d’Eze.

Au calme, surplombant la mer, cette villa au fort potentiel est saine mais nécessiterait une modernisation.

Elle est composée au niveau supérieur de 3 chambres dont une avec vue mer, une cuisine indépendante, un beau salon et une véranda exposés plein sud vue mer, d’une grande terrasse de 22m2.
Au Rez-de-jardin un grand studio indépendant de 34 m2.
Une cave, un atelier, et un garage fermé viennent compléter ce bien.

Le permis d’un projet antérieur de rénovation avec une surface habitable de 350 m2 et une piscine a été accepté.

honoraires agence charge acquéreur en sus du prix (5%)

“Les informations sur les risques auxquels ce bien est exposé sont disponibles sur le site Géorisques http://georisques.gouv.fr”.
Voir plus

Référence: 84019403
DPE
A
B
C
D
E
F
G
GES
A
B
C
D
E
F
G

Prêt immobilier

Vous souhaitez connaître votre capacité d’emprunt et trouver le meilleur crédit immobilier ?
Réaliser une simulation gratuite

Maison à EZE
Maison à EZE
Maison à EZE
Maison à EZE
Maison à EZE
Maison à EZE
Maison à EZE
Maison à EZE
Maison à EZE
Maison à EZE
Maison à EZE
Ce site est protégé par reCAPTCHA la Politique de confidentialité et les Conditions d’utilisation de Google s’appliquent.
Obtenir un prêt immobilier au meilleur taux ?

En poursuivant votre navigation sans modifier vos paramètres, vous acceptez l'utilisation de cookies susceptibles de réaliser des statistiques de visite. Cliquez ici pour plus d'informations