Pavillon neuf (2022) de plain pied à havange

— Havange 57650 —
424 000 €
110 m² / 556 m²
6 pièces
parkingjardin

Rare dans le secteur !
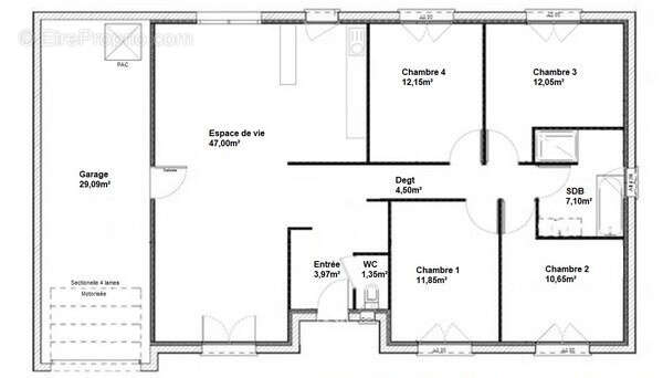
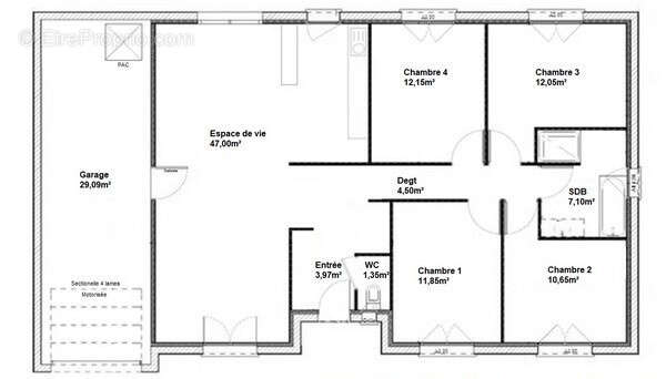
Plain-pied neuf à Havange,  à quelques mètres de l’A30. Au calme, au coeur d'un nouveau lotissement découvrez ce pavillon individuel neuf de plain pied de 110m2 qui vous offre un très beau séjour de 47 m2 avec son coin cuisine équipée, 4 chambres, une salle de bain avec douche, baignoire et meuble double vasque. Garage 2 VL avec porte motorisée, chauffage au sol via pompe à chaleur, volets électriques. Terrain de 5,56 ares.
Garantie décennale et dommage ouvrage.
Les exterieurs sont à prévoir ( Terrasse et cloture)
 'Les informations sur les risques auxquels ce bien est exposé sont disponibles sur le site Géorisques : www.georisques.gouv.fr'
Voir plus

Référence: 1908
Honoraires à la charge du vendeur.
Barème des honoraires
DPE
A
B
C
D
E
F
G
GES
A
B
C
D
E
F
G

Prêt immobilier

Vous souhaitez connaître votre capacité d’emprunt et trouver le meilleur crédit immobilier ?
Réaliser une simulation gratuite

Maison à HAVANGE
Maison à HAVANGE
Maison à HAVANGE
Maison à HAVANGE
Maison à HAVANGE
Maison à HAVANGE
Maison à HAVANGE
Maison à HAVANGE
Maison à HAVANGE
Maison à HAVANGE
Ce site est protégé par reCAPTCHA la Politique de confidentialité et les Conditions d’utilisation de Google s’appliquent.
Obtenir un prêt immobilier au meilleur taux ?

En poursuivant votre navigation sans modifier vos paramètres, vous acceptez l'utilisation de cookies susceptibles de réaliser des statistiques de visite. Cliquez ici pour plus d'informations