Terrain forges-les-bains 590 m2

— Forges-Les-Bains 91470 —
169 000 €
590 m²
jardin

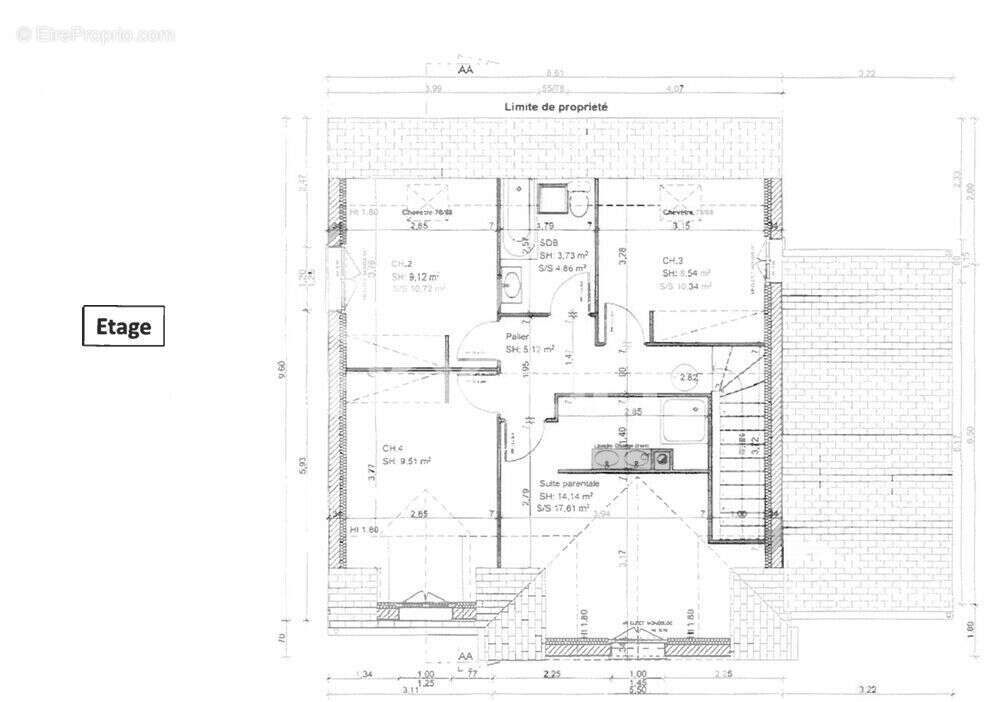
Situé dans un environnement privilégié proche du centre de Forges-les-Bains , beau terrain plat de 590 m² exposé sud . Lot arrière de 24,6 ML de façade Exemple d'implantation ci-joint pour une maison de 120 m² habitable environ avec 4 chambres et garage attenant. Terrain libre de constructeur Etude de sol à disposition. A proximité des écoles de Forges-les-Bains et de la gare routière de Briis-sous-Forges ( accès au RER B , TGV , université d'Orsay, ZA de Courtaboeuf - Les Ulis) . Envie d'en savoir plus ? Nos conseillers sont à votre écoute pour vous en dire plus ...
Voir plus

Référence: 965
Honoraires à la charge du vendeur.
Barème des honoraires

Prêt immobilier

Vous souhaitez connaître votre capacité d’emprunt et trouver le meilleur crédit immobilier ?
Réaliser une simulation gratuite

Terrain à FORGES-LES-BAINS
Terrain à FORGES-LES-BAINS
Terrain à FORGES-LES-BAINS
Terrain à FORGES-LES-BAINS
Terrain à FORGES-LES-BAINS
Terrain à FORGES-LES-BAINS
Ce site est protégé par reCAPTCHA la Politique de confidentialité et les Conditions d’utilisation de Google s’appliquent.
Obtenir un prêt immobilier au meilleur taux ?

En poursuivant votre navigation sans modifier vos paramètres, vous acceptez l'utilisation de cookies susceptibles de réaliser des statistiques de visite. Cliquez ici pour plus d'informations