Bénéficiez des services de nos partenaires locaux soigneusement sélectionnés
pour vous accompagner dans votre parcours d'achat immobilier

Lambesc terrain à bâtir - libre constructeur

— Lambesc 13410 —
249 000 €
362 m²

Nos partenaires locaux
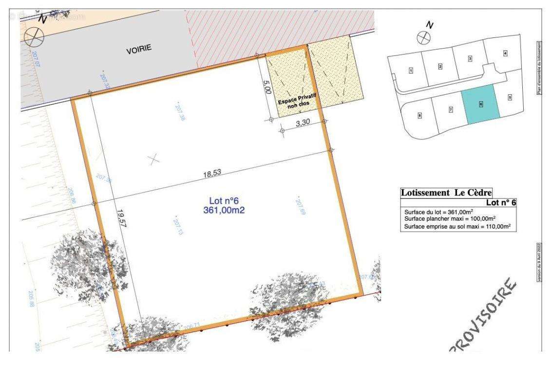
Votre agence ORPI vous propose ce terrain à bâtir libre constructeur de 361m². L'emprise au sol accordée est de 110 m² et la surface de plancher accordée est de 100m² en R+1. Plusieurs devis de constructeur sont disponible en agence pour la construction de votre villa de 90m² + garage - prix de la construction à partir de 170 000€ Situé à proximité des commodités et des accès, vous pourrez vous projeter dans un environnement de premier choix.
Les informations sur les risques auxquels ce bien est exposé sont disponible sur le site Géorisques : www.georisques.gouv.fr
SAS SUD EST IMMO au Capital social : 10 000 € - RCS Salon de Provence 422449017 - TVA : FR 62422449017 - Carte professionnelle CPI 1310 2[Coordonnées masquées]50 Caisse de Garantie - Allianz Verspieren - 87, rue de Richelieu - 75002 PARIS - Montant des garanties G 300 000 € - T 110 000 € - Syndic 110 000€
Référence agence : 5872
Voir plus

Référence: LBY7-RT3-DAI
Honoraires à la charge du vendeur.

Prêt immobilier

Vous souhaitez connaître votre capacité d’emprunt et trouver le meilleur crédit immobilier ?
Réaliser une simulation gratuite

Terrain à LAMBESC
Terrain à LAMBESC
Terrain à LAMBESC
Terrain à LAMBESC
Ce site est protégé par reCAPTCHA la Politique de confidentialité et les Conditions d’utilisation de Google s’appliquent.
Obtenir un prêt immobilier au meilleur taux ?

En poursuivant votre navigation sans modifier vos paramètres, vous acceptez l'utilisation de cookies susceptibles de réaliser des statistiques de visite. Cliquez ici pour plus d'informations