Bénéficiez des services de nos partenaires locaux soigneusement sélectionnés
pour vous accompagner dans votre parcours d'achat immobilier

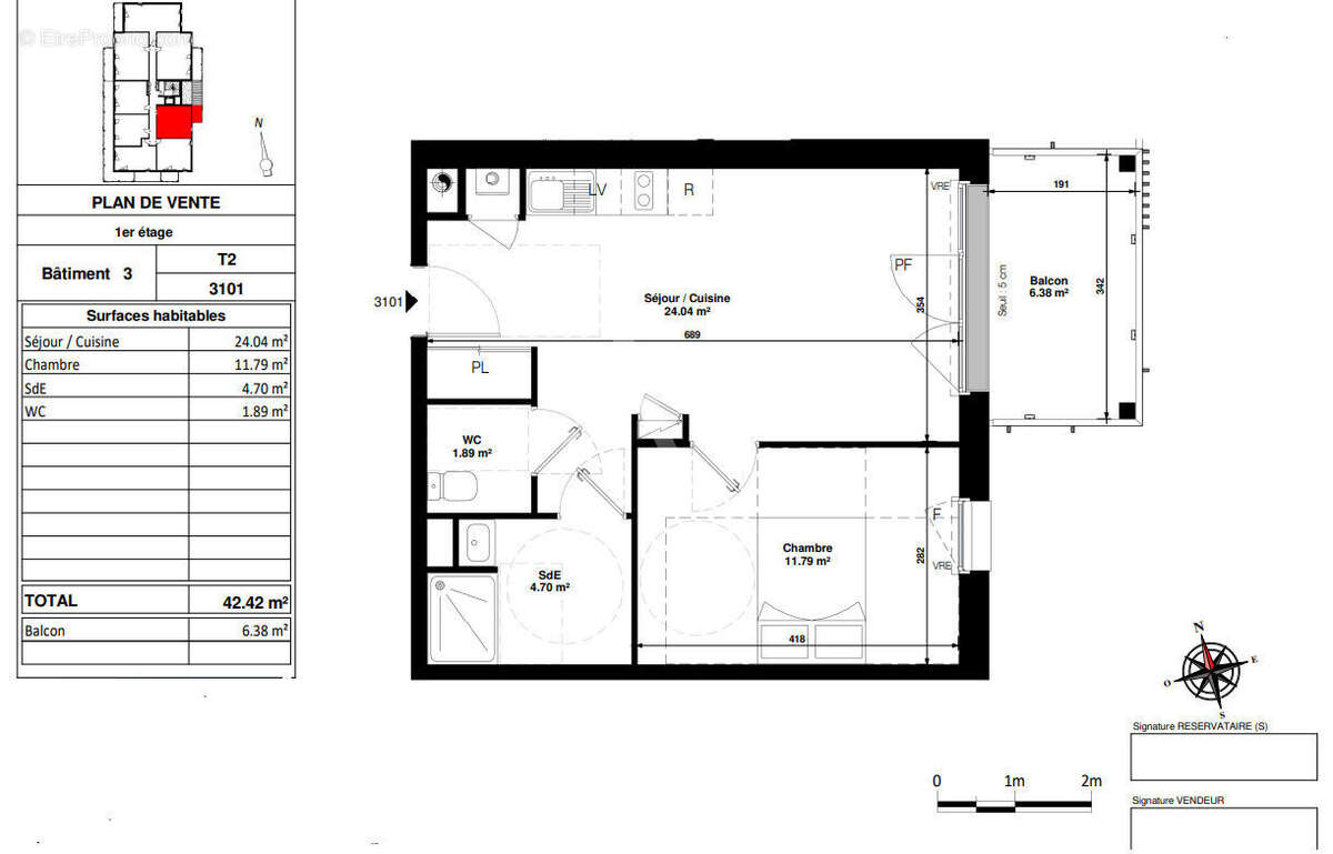
Appartement de type 2 de 42,42m² avec balcon à proximité immédiate du centre ville de pornichet

— Pornichet 44380 —
249 000 €
42 m²
2 pièces
parkingbalcon/terrasseascenseur

Nos partenaires locaux
A proximité immédiate du centre ville de Pornichet avec son remblai et sa plage à moins de 1 km, dans un environnement paysagé de près de 1hectare venez découvrir cette nouvelle résidence de 44 appartements du type 2 au type 4 et ses 5 villas sur le toit , aux prestations de standing et aux détails soignées. Depuis votre nouvelle adresse pornichétine, vous aurez également accès à pied à tous les commerces et les services du quotidien. A VENDRE appartement T2 de 42,42m² situé au 1er étage de la résidence. Il se compose d'un séjour cuisine de 24,04m² orienté Est donnant sur un beau balcon de 6,38m²,une belle chambre de 11,79m², une salle d'eau et WC séparé. A ceci s'ajoute une place de parking privative et sécurisée. Label Energie RT2020 Prix: 249 000 euros TTC (+ frais notaire réduits 2.5%) Prix direct promoteur REF: 31738-Car3101 "Les informations sur les risques auxquels ce bien est exposé sont disponibles sur le site Géorisques : www.georisques.gouv.fr" Copropriété de 49 lots - dont 49 lots habitation.(Pas de procédure en cours).
Voir plus

Référence: 31738
Bien en copropriété. Nombre de lots : 49.
Honoraires à la charge du vendeur.
Barème des honoraires

Prêt immobilier

Vous souhaitez connaître votre capacité d’emprunt et trouver le meilleur crédit immobilier ?
Réaliser une simulation gratuite

Appartement à PORNICHET
Appartement à PORNICHET
Appartement à PORNICHET
Appartement à PORNICHET
Appartement à PORNICHET
Appartement à PORNICHET
Ce site est protégé par reCAPTCHA la Politique de confidentialité et les Conditions d’utilisation de Google s’appliquent.
Obtenir un prêt immobilier au meilleur taux ?

En poursuivant votre navigation sans modifier vos paramètres, vous acceptez l'utilisation de cookies susceptibles de réaliser des statistiques de visite. Cliquez ici pour plus d'informations