Bénéficiez des services de nos partenaires locaux soigneusement sélectionnés
pour vous accompagner dans votre parcours d'achat immobilier

La pointe croisette - appartement 4 pièces de standing de 71m2 645 000€

— Cannes 06400 —
645 000 €
71 m²
4 pièces
parkingbalcon/terrasse

Nos partenaires locaux
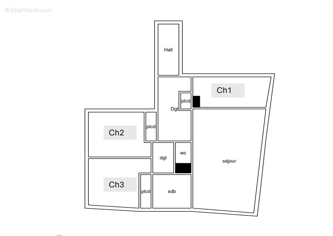
Situé au 1er étage d'une résidence calme, cet appartement de 4 pièces, d'une superficie de 71m2 se situe dans le quartier de la Pointe Croisette, à seulement 200 mètres de la plage du Mouret Rouge et à une rue de la Croisette, offrant un style de vie reposant au cœur de Cannes et à proximité de tous les commerces.
Cet appartement, en excellent état, propose une cuisine équipée ouverte sur un salon de 25m2. Les larges baies vitrées assurent une luminosité naturelle, tandis que la terrasse calme de 13m2 offre un espace extérieur idéal pour des moments de détente.
Avec ses 3 chambres bien agencées, dont une équipée d'une salle d'eau privative, l'appartement offre un confort optimal pour ses résidents.
La qualité des matériaux et la finesse des finitions contribuent à créer une atmosphère de raffinement.
Ses équipements, une climatisation dans l'espace de vie, de volets roulants électriques dans l’ensemble de l’appartement et une salle de bain avec wc indépendants ajoutent une touche de modernité et de confort à cette résidence d'exception.
il est accompagné d'un garage fermé et d’une cave complète cette offre, offrant un espace de stockage supplémentaire.
Charges mensuelles 195€/mois
Copropriété (garages et caves inclus) : lot No 104/144.
Les honoraires de commercialisation sont à la charge du vendeur.
Les informations sur les risques auxquels ce bien est exposé sont disponibles sur le site Géorisques : www.georisque.gouv.fr
Pour organiser une visite et découvrir ce bien, contactez nous dès maintenant.
Voir plus

Référence: 46
Bien en copropriété. Nombre de lots : 144. Charges de copropriété : 2349 €.
Honoraires à la charge du vendeur.
Barème des honoraires
DPE
A
B
C
D
E
F
G
GES
A
B
C
D
E
F
G

Prêt immobilier

Vous souhaitez connaître votre capacité d’emprunt et trouver le meilleur crédit immobilier ?
Réaliser une simulation gratuite

Appartement à CANNES
Appartement à CANNES
Appartement à CANNES
Appartement à CANNES
Appartement à CANNES
Appartement à CANNES
Appartement à CANNES
Appartement à CANNES
Appartement à CANNES
Appartement à CANNES
Appartement à CANNES
Appartement à CANNES
Appartement à CANNES
Appartement à CANNES
Appartement à CANNES
Appartement à CANNES
Ce site est protégé par reCAPTCHA la Politique de confidentialité et les Conditions d’utilisation de Google s’appliquent.
Obtenir un prêt immobilier au meilleur taux ?

En poursuivant votre navigation sans modifier vos paramètres, vous acceptez l'utilisation de cookies susceptibles de réaliser des statistiques de visite. Cliquez ici pour plus d'informations