Bénéficiez des services de nos partenaires locaux soigneusement sélectionnés
pour vous accompagner dans votre parcours d'achat immobilier

Frejus plage - dernier etage - t4 avec parking double

— Frejus 83600 —
740 000 €
90 m²
4 pièces
parkingbalcon/terrasseascenseuraccès handicapé

Nos partenaires locaux
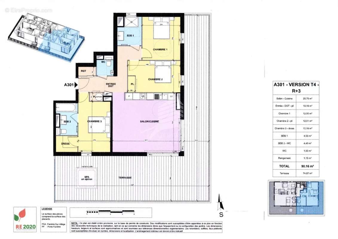
A 3 minutes de la plage, cet appartement situé au dernier étage d'une petite résidence avec ascenseur compte seulement 10 lots. D'une superficie de 90 m², il bénéficie d'une exposition sud/est, garantissant ainsi une luminosité optimale tout au long de la journée.

L'entrée de l'appartement est pourvue d'un placard pratique permettant de ranger vos affaires. Un toilette indépendant est également présent.

La cuisine est ouverte sur le séjour, ce qui crée une atmosphère conviviale et favorise les échanges. Le séjour donne accès à une grande terrasse d'environ 75 m², offrant un espace idéal pour profiter des beaux jours. De plus, un emplacement est prévu pour installer un SPA, permettant ainsi de se détendre et de profiter d'un véritable espace de bien-être.

Deux chambres de taille généreuse se partagent une salle d'eau moderne. La chambre de maître dispose d'un dressing permettant de ranger vos vêtements et d'une salle de bains privative pour un confort absolu. Toutes les pièces de l'appartement donnent sur la terrasse, offrant ainsi une vue dégagée et agréable.

Pour vos véhicules, un parking double en sous-sol est inclus dans le bien.

En résumé, cet appartement d'exception offre de nombreux atouts, tels qu'une superficie confortable, une exposition favorable, une grande terrasse avec emplacement pour SPA, un parking double en sous-sol et des pièces spacieuses. Ne manquez pas cette opportunité unique.
Voir plus

Référence: 84055621

Prêt immobilier

Vous souhaitez connaître votre capacité d’emprunt et trouver le meilleur crédit immobilier ?
Réaliser une simulation gratuite

Appartement à FREJUS
Appartement à FREJUS
Appartement à FREJUS
Appartement à FREJUS
Ce site est protégé par reCAPTCHA la Politique de confidentialité et les Conditions d’utilisation de Google s’appliquent.
Obtenir un prêt immobilier au meilleur taux ?

En poursuivant votre navigation sans modifier vos paramètres, vous acceptez l'utilisation de cookies susceptibles de réaliser des statistiques de visite. Cliquez ici pour plus d'informations