Villa hacienda neuve prête à finir à saint andré

— Saint-Andre 97440 —
282 077 €
92 m²
4 pièces

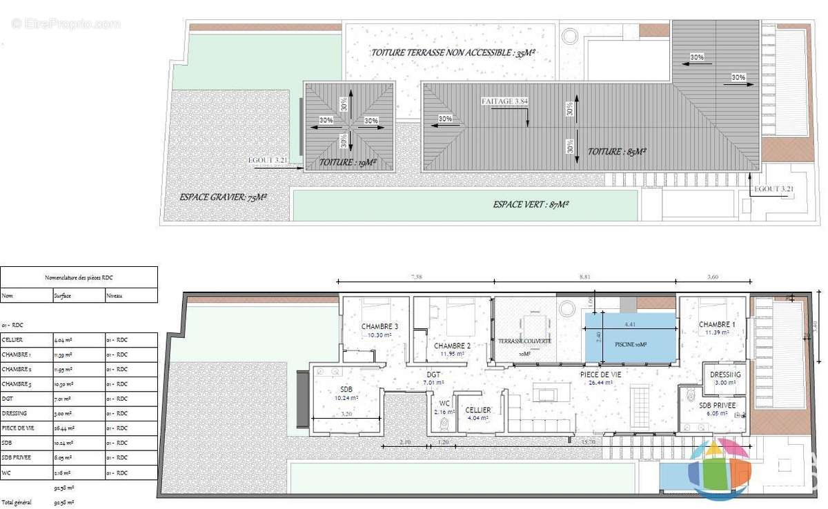
Villa neuve prête à finir (vendue sur plans), d'une surface habitable de 92,58m², érigée sur une belle parcelle de 396m² (dont environ 316m² exploitables pour la construction). Nichée au sein d'une résidence, dans le secteur prisé du Chemin LEFAGUYES, cette propriété offre une localisation idéale à proximité immédiate de la ville, des centres commerciaux, et est à moins de 2 minutes depuis la 4 voies.
Cette villa a été méticuleusement conçue dans une optique de modernité, avec une disposition de plain-pied. Dès l'entrée, elle vous accueille dans une pièce de vie conviviale, comprenant un salon, un espace cuisine ouvert et une salle à manger s'ouvrant sur une terrasse. Les trois chambres et deux salles de bains offrent un agencement pratique, incluant une suite parentale pour un confort optimal.
En résumé, la villa propose un séjour/ espace cuisine, un salon, un cellier, trois chambres, deux salles de bains, deux WC et une terrasse.
Proposée au prix attractif de 282.077,24€ (prix de la parcelle seule : 150.000€). Les honoraires sont à la charge du vendeur.
Les aménagements de la cuisine, les dressings, la piscine et les aménagements extérieurs sont en options. Les menuiseries en aluminium (portes et fenêtres extérieures) sont à prévoir en supplément.
Pour plus d'informations ou pour une visite, veuillez contacter DELMAS Yann, agent mandataire indépendant du réseau TEKA IMMO, au [Coordonnées masquées]. Inscrit au RSAC de Saint Denis sous le n° 832640825. Consultez notre site internet TEKA IMMO pour le barème des honoraires : https://tekaimmo.fr/honoraires.pdf. Annonce rédigée sous la responsabilité éditoriale de l'agent. Les informations sur les risques naturels auxquels ce bien est exposé sont disponibles sur le site georisque : www.georisque.gouv.fr.\n
Voir plus

Référence: 6228YD
Honoraires à la charge du vendeur.
Barème des honoraires

Prêt immobilier

Vous souhaitez connaître votre capacité d’emprunt et trouver le meilleur crédit immobilier ?
Réaliser une simulation gratuite

Maison à SAINT-ANDRE
Maison à SAINT-ANDRE
Maison à SAINT-ANDRE
Maison à SAINT-ANDRE
Maison à SAINT-ANDRE
Maison à SAINT-ANDRE
Maison à SAINT-ANDRE
Maison à SAINT-ANDRE
Maison à SAINT-ANDRE
Maison à SAINT-ANDRE
Maison à SAINT-ANDRE
Maison à SAINT-ANDRE
Maison à SAINT-ANDRE
Maison à SAINT-ANDRE
Maison à SAINT-ANDRE
Maison à SAINT-ANDRE
Ce site est protégé par reCAPTCHA la Politique de confidentialité et les Conditions d’utilisation de Google s’appliquent.
Obtenir un prêt immobilier au meilleur taux ?

En poursuivant votre navigation sans modifier vos paramètres, vous acceptez l'utilisation de cookies susceptibles de réaliser des statistiques de visite. Cliquez ici pour plus d'informations