Parcelle viabilisee de 640 m2 - quartier francais

— Sainte-Suzanne 97441 —
195 200 €
699 m²
jardin

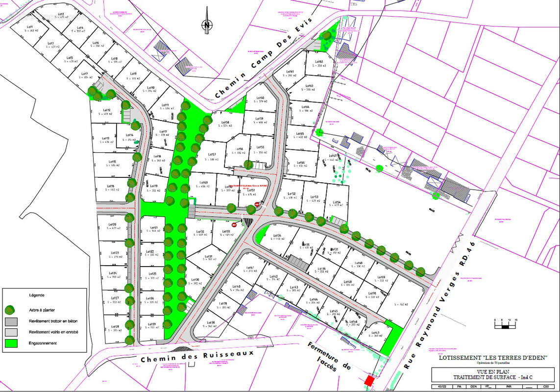
L'agence GTI, spécialiste de la vente de terrains à La Réunion, vous propose un nouveau lotissement de qualité. Situé à Quartier Français, secteur Camp des Evis, LES TERRES D'EDEN est un lotissement idéalement placé sur les premières hauteurs à 2 minutes du centre commercial GRAND EST et des accès 4 voies. Ce lotissement situé en zone Ua propose 70 parcelles de 302 m2 à 640 m2. Situé dans un secteur zone encore peu urbanisé, on y profite de la verdure environnante et d'une belle vue, notamment sur nos montagnes. Que vous souhaitiez construire votre habitation principale ou investir avec pour finalité la location et/ou la défiscalisation, n'hésitez pas à nous contacter. Nous sommes à votre disposition pour toute information et réservation. A partir de 99 990€
Zone Ua au PLU
HAUTEUR MAXIMALE 16 mètres au faitage
EMPRISE AU SOL Sans objet
LIVRAISON SEPTEMBRE 2020
Voir plus

Référence: 2934
Barème des honoraires

Prêt immobilier

Vous souhaitez connaître votre capacité d’emprunt et trouver le meilleur crédit immobilier ?
Réaliser une simulation gratuite

Terrain à SAINTE-SUZANNE
Terrain à SAINTE-SUZANNE
Terrain à SAINTE-SUZANNE
Ce site est protégé par reCAPTCHA la Politique de confidentialité et les Conditions d’utilisation de Google s’appliquent.
Obtenir un prêt immobilier au meilleur taux ?

En poursuivant votre navigation sans modifier vos paramètres, vous acceptez l'utilisation de cookies susceptibles de réaliser des statistiques de visite. Cliquez ici pour plus d'informations