Lot 3 : terres-de-caux 92.21 m2

— Fauville-En-Caux 76640 —
248 199 €
92 m² / 526 m²
4 pièces
jardin

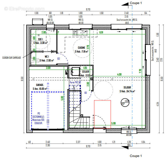
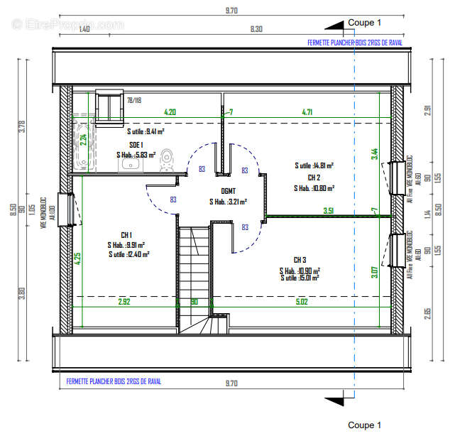
Votre agence Laforêt Terres-de-Caux vous propose cette maison T4, située en hyper centre-ville de Fauville-en-Caux, de 92.21 m² sur une parcelle de 526 m². Elle sera livrée clé en main avec des prestations de qualité (Conforme aux exigences de la nouvelle Réglementation Thermique (RT 2012). Composée au rez-de-chaussée d'une entrée, d'une cuisine (non incluse dans les prestations) ouverte sur son séjour, d'un cellier, d'une salle de douche et d'un toilette. A l'étage, trois chambres et une salle d'eau. Garage et terrasse. Prix et visuels non contractuels Vendu en VEFA Frais de Notaires réduits
Voir plus

Référence: 6712
Honoraires à la charge du vendeur.
Barème des honoraires

Prêt immobilier

Vous souhaitez connaître votre capacité d’emprunt et trouver le meilleur crédit immobilier ?
Réaliser une simulation gratuite

Maison à FAUVILLE-EN-CAUX
Maison à FAUVILLE-EN-CAUX
Maison à FAUVILLE-EN-CAUX
Maison à FAUVILLE-EN-CAUX
Ce site est protégé par reCAPTCHA la Politique de confidentialité et les Conditions d’utilisation de Google s’appliquent.
Obtenir un prêt immobilier au meilleur taux ?

En poursuivant votre navigation sans modifier vos paramètres, vous acceptez l'utilisation de cookies susceptibles de réaliser des statistiques de visite. Cliquez ici pour plus d'informations