Batiment

— Neufchateau 88300 —
450 000 €
5 600 m²

adresse : rue des pépinières 88300 Neufchâteau,
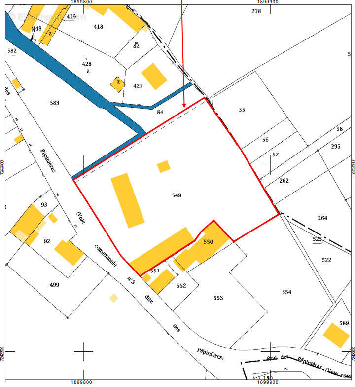
Section : section AH parcelle n°549
Superficie : 5600 m²
Altitude du site : 282 à 283m NGF
. le site est actuellement inoccupé et clos en quasi-totalité.il comprend:
. un bâtiment désaffecté R+1: le bâtiment A comprend un rez-de-chaussée sur vide sanitaire ( magasin, vestiaire/WC, quelques bureaux et une
. chaufferie au gaz) et un étage(appartements).
. un bâtiment désaffecté: le bâtiment B est muré.il est constitué d’anciens garages.
. deux anciens parkings pour véhicules légers, D’une potentiel ancienne aire de lavage, D’une ancienne aire de stockage sur terrain vague, D’espaces
vert avec quelques arbres.
Estimation de l’occupation des sols: bâtiments environ 15% du site, emprise enrobée environ 40% du site, et la surface enherbée 45% du site.
le PLU : est en cour d’être revu pour la construction d’habitation logement.
Voir plus

Honoraires à la charge de l'acquéreur.
Barème des honoraires

Prêt immobilier

Vous souhaitez connaître votre capacité d’emprunt et trouver le meilleur crédit immobilier ?
Réaliser une simulation gratuite

Terrain à NEUFCHATEAU
Terrain à NEUFCHATEAU
Terrain à NEUFCHATEAU
Terrain à NEUFCHATEAU
Terrain à NEUFCHATEAU
Terrain à NEUFCHATEAU
Terrain à NEUFCHATEAU
Terrain à NEUFCHATEAU
Terrain à NEUFCHATEAU
Terrain à NEUFCHATEAU
Ce site est protégé par reCAPTCHA la Politique de confidentialité et les Conditions d’utilisation de Google s’appliquent.
Obtenir un prêt immobilier au meilleur taux ?

En poursuivant votre navigation sans modifier vos paramètres, vous acceptez l'utilisation de cookies susceptibles de réaliser des statistiques de visite. Cliquez ici pour plus d'informations