Flesselles : pavillon 100m2 de plain pied avec 3 chambres, j

— Flesselles 80260 —
179 900 €
100 m² / 700 m²
5 pièces
parkingjardin

Flesselles :
Le Cabinet Immobilier Amienois, vous propose en exclusivité, à la vente :

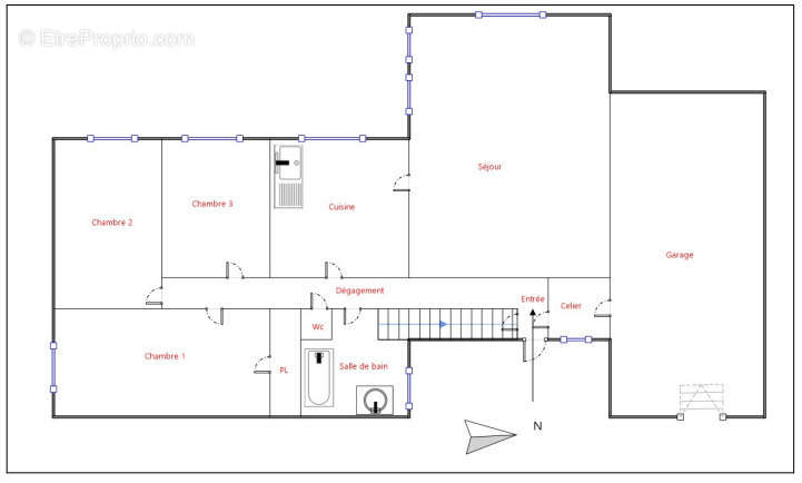
Un pavillon de plain-pied de 100m2 comprenant :

- une entrée avec placards et cellier
- un bel espace de vie comprenant un séjour de 37m2
- une cuisine fermée de 10m2 ( possibilité d'ouvrir )
- 3 chambres de 12m2, 12m2 et 9m2
- une salle de bain

Rafraichissement à prévoir !

Ce plain-pied possède également :
- un demi sous-sol piéton de 50m2.
- un garage de 35m2 ( poss. 2 voitures l'une derrière l'autres)
- Chauffage gaz de ville et Double Vitrage PVC

Les exterieurs se composent d'un joli jardin de 700m2 pouvant etre aménagé avec un espace potager, une terrasse, etc...

Dans ville dynamique, avec tous les commerces, écoles, médecin, associations sportives, culturelles...
Village à 10 minutes de la zone industrielle Nord et 15 minutes du centre ville d'Amiens

Pour plus de renseignements, contactez Romain HECQUET :
au [Coordonnées masquées] ou par mail : [Coordonnées masquées]
Prise de rendez vous possible sur le site de l'agence directement.
Voir plus

Référence: plain_pied_Fless
Honoraires d'agence de 5.7% à la charge de l'acquéreur
Barème des honoraires
DPE
A
B
C
D
E
F
G
GES
A
B
C
D
E
F
G

Prêt immobilier

Vous souhaitez connaître votre capacité d’emprunt et trouver le meilleur crédit immobilier ?
Réaliser une simulation gratuite

Maison à FLESSELLES
Maison à FLESSELLES
Maison à FLESSELLES
Maison à FLESSELLES
Maison à FLESSELLES
Maison à FLESSELLES
Maison à FLESSELLES
Maison à FLESSELLES
Maison à FLESSELLES
Maison à FLESSELLES
Ce site est protégé par reCAPTCHA la Politique de confidentialité et les Conditions d’utilisation de Google s’appliquent.
Obtenir un prêt immobilier au meilleur taux ?

En poursuivant votre navigation sans modifier vos paramètres, vous acceptez l'utilisation de cookies susceptibles de réaliser des statistiques de visite. Cliquez ici pour plus d'informations