Bénéficiez des services de nos partenaires locaux soigneusement sélectionnés
pour vous accompagner dans votre parcours d'achat immobilier

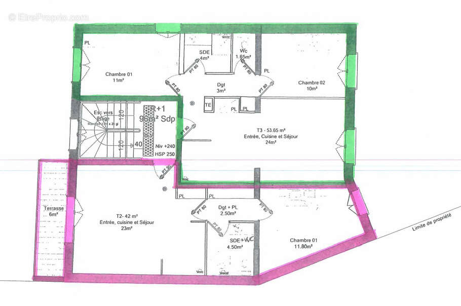
Projet immeuble 5 appartements

— Mitry-Mory 77290 —
468 000 €
290 m² / 676 m²
jardin

Nos partenaires locaux
A Mitry-Mory, venez découvrir ce projet offrant beaucoup de potentiel. Sur plus de 670 m² de terrain, un permis a été validé par la mairie afin de créer 5 logements au total : 1 F4 d'environ 89 m², 2 F3 d'environ 53 m² et 2 F2 d'environ 42 m². N'hésitez pas à nous contacter pour plus d'informations.

Honoraires à la charge du vendeur.
Barème des honoraires

Prêt immobilier

Vous souhaitez connaître votre capacité d’emprunt et trouver le meilleur crédit immobilier ?
Réaliser une simulation gratuite

Appartement à MITRY-MORY
Appartement à MITRY-MORY
Appartement à MITRY-MORY
Appartement à MITRY-MORY
Appartement à MITRY-MORY
Ce site est protégé par reCAPTCHA la Politique de confidentialité et les Conditions d’utilisation de Google s’appliquent.
Obtenir un prêt immobilier au meilleur taux ?

En poursuivant votre navigation sans modifier vos paramètres, vous acceptez l'utilisation de cookies susceptibles de réaliser des statistiques de visite. Cliquez ici pour plus d'informations