Bénéficiez des services de nos partenaires locaux soigneusement sélectionnés
pour vous accompagner dans votre parcours d'achat immobilier

Commerce à amiens

— Amiens 80000 —
n.c. €

Nos partenaires locaux
UNIQUE ! Locaux commerciaux & bureaux.
Une situation idéale en coeur de ville dans un lieu d'exception, emprunt de culture !

Située à 1h10 de PARIS , 1h de LILLE et 45 minutes de l'aéroport PARIS /BEAUVAIS, AMIENS Métropole compte 178.892 habitants.

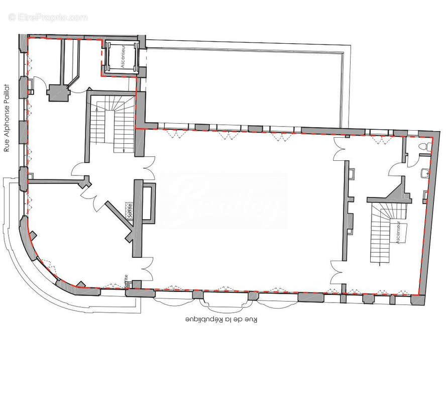
Derrière le numéro 29 de la rue de la République, dans les anciens locaux du Courrier Picard, en RDC et/ou R+1 d'une co-propriété de style Art Déco, nous vous proposons à la vente 2 plateaux de bureaux livrés bruts.
Une situation exceptionnelle, en centre-ville et à proximité immédiate du parking souterrain des Jacobins !

RDC et cave : 760 000 € TTC
Cellule de 243 m² + Cave d'environ 218 m² : 720 000 € TTC
2 places de stationnement large : 40 000 € TTC


R+1: 516.000€ TTC
Cellule de 210 m² + terrasse de 30 m² : 480 000 € TTC
2 places de stationnement : 36 000 € TTC


Pour plus d'informations contactez Delphine LEGLISE au [Coordonnées masquées].
Bradley Immobilier d'Entreprise - Amiens
[Coordonnées masquées].
Consultez nos offres ! www.bradley-immobilier.fr
Voir plus

Référence: VP164-BRADLEY
Honoraires à la charge de l'acquéreur.
Barème des honoraires

Prêt immobilier

Vous souhaitez connaître votre capacité d’emprunt et trouver le meilleur crédit immobilier ?
Réaliser une simulation gratuite

Commerce à AMIENS
Commerce à AMIENS
Commerce à AMIENS
Commerce à AMIENS
PLAN RDC - Commerce à AMIENS
PLAN RDC
PLAN R+1 - Commerce à AMIENS
PLAN R+1
Ce site est protégé par reCAPTCHA la Politique de confidentialité et les Conditions d’utilisation de Google s’appliquent.
Obtenir un prêt immobilier au meilleur taux ?

En poursuivant votre navigation sans modifier vos paramètres, vous acceptez l'utilisation de cookies susceptibles de réaliser des statistiques de visite. Cliquez ici pour plus d'informations