Appartement de type plateau 163m2, chonas l amballan

— Chonas-L'amballan 38121 —
129 500 €
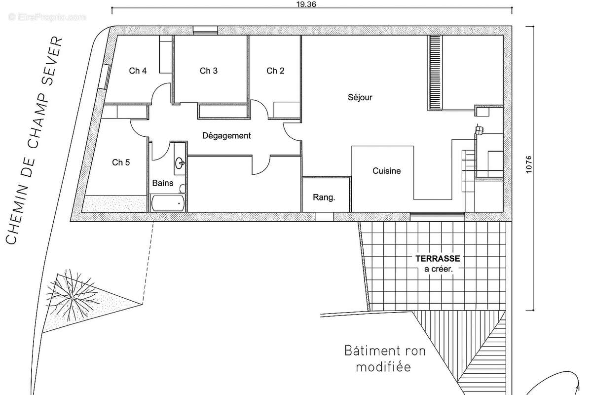
163 m²
6 pièces

AM2903 - SUD VIENNE (38200) - CHONAS L'AMBALLAN
Idéal investisseur ou 1er ACHAT
Sur la commune prisé de Chonas l'Amballan, au centre du village et des ses commodités, l'agence SIT IMMOBILIER vous propose à la vente ce PLATEAU de 163 m2, entièrement à aménager, avec terrasse de 35 m2.
Charpente en bon état et couverture refaite en 2006.
Copropriété de 3 lots.
Aucune procédure n'est en cours.
DPE : vierge PRIX AFFICHE HONORAIRES AGENCE INCLUS A CHARGE VENDEUR.
« Les informations sur les risques auxquels ce bien est exposé sont disponibles sur le site Géorisques : www.georisques.gouv.fr »
Voir plus

Référence: 2903
Honoraires à la charge du vendeur.
Barème des honoraires

Prêt immobilier

Vous souhaitez connaître votre capacité d’emprunt et trouver le meilleur crédit immobilier ?
Réaliser une simulation gratuite

Appartement à CHONAS-L'AMBALLAN
Appartement à CHONAS-L'AMBALLAN
Appartement à CHONAS-L'AMBALLAN
Appartement à CHONAS-L'AMBALLAN
Appartement à CHONAS-L'AMBALLAN
Ce site est protégé par reCAPTCHA la Politique de confidentialité et les Conditions d’utilisation de Google s’appliquent.
Obtenir un prêt immobilier au meilleur taux ?

En poursuivant votre navigation sans modifier vos paramètres, vous acceptez l'utilisation de cookies susceptibles de réaliser des statistiques de visite. Cliquez ici pour plus d'informations